Проект на къща в с. Пчелище
Информация за проекта:
- Проект ID: 836
- Место нахождения: с. Пчелище, общ. Велико Търново
- Фаза проекта: технический проект
- Цена: 15450 лв. (без ДДС)
- Этап строительства: строеж
- Тип крыши: Многоскатен
- Технически показатели
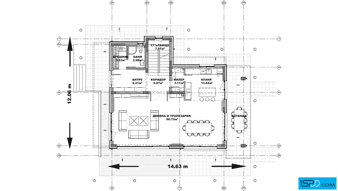
- Площадь зданий: 130 кв.м.
- Общая площадь: 430 кв.м.
- Габарити на сградата
- Широчина на сградата: 14.60 м.
- Дължина на сградата: 12.10 м.
- Функционалност
- Сутерен: Да
- Этажи: 2
- Комнаты: 5
- Спальни: 4
- Балконы: 1
- Веранда: 1
- Гараж: 2
- Бани/WC: 3
Информация за проекта:
Проект на къща в с. Пчелище проектирана от архитектурно студио Ай Ес Пи Дигитален Дизайн
ЗАКУПУВАНЕ НА
ПРОЕКТ НА КЪЩА
Имате въпроси по проекта?
Ние сме тук да Ви помогнем!
Свържете се с нас сега!
(+359 887) 237 839
(+359 887) 213 099

























Коментари