Семейный дом
Информация за проекта:
- Проект ID: 450
- Место нахождения: город София
- Фаза проекта: технический проект
- Цена: 6400 лв. (без ДДС)
- Дата завершения: 09.2018
- Этап строительства: Проект
- Тип крыши: Четырескатный
- Технически показатели
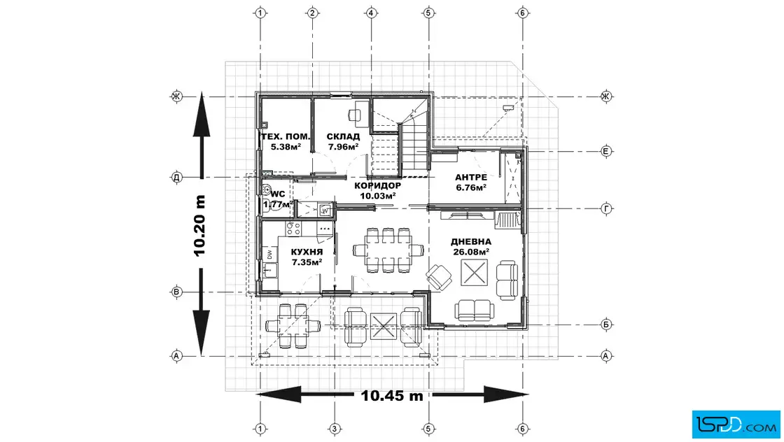
- Площадь зданий: 78 кв.м.
- Общая площадь: 163 кв.м.
- Габарити на сградата
- Широчина на сградата: 10.45 м.
- Дължина на сградата: 10.20 м.
- Функционалност
- Сутерен: Не
- Этажи: 2
- Комнаты: 4
- Спальни: 3
- Веранда: 1
- Бани/WC: 3
Информация за проекта:
Семейный дом, проектированный архитектурной мастерской Ай Ес Пи Цифровой Дизайн расположенный в городе София.
ЗАКУПУВАНЕ НА
ПРОЕКТ НА КЪЩА
Имате въпроси по проекта?
Ние сме тук да Ви помогнем!
Свържете се с нас сега!
(+359 887) 237 839
(+359 887) 213 099
























Коментари
Къщата монолитна ли е? Може ли вътрешно разпределение
Здравейте, къщата е решена с дървена сглобяема конструкция, но без проблем може да се преработи в монолитна (при желание от Възложител). В близките дни ще качим плановете на етажите в сайта. Поздрави!
Коя фирма е построила тази къща?Може ли линк
Здравейте, къщата е все още в етап проектиране и строителни дейности не са започнали. Поздрави!
как знаете колко сглобяема къща цена този дизайн е през нощта
please inform me about the price this house.
Hello. Which price do you have in mind? We can only give you the designers' fees and not the construction cost. Please specify where you want this house built, so that we can give you precise estimate. Regards!
Здравейте,
искам да знам колко струва проектът и също така вие строите ли ако да колко горе долу би ми излязла тази красива къща?
Благодаря!
Здравейте, изпратихме Ви по имейл оферта за проекта на къщата. Относно строителната стойност най-добре е да се обърнете към строителни фирми за информация. Офертите им варират в големи граници и към този момент са в рамките на 400 - 500 евро/м2 до ключ. Поздрави!
Здравейте,
бихте ли ми изпратили оферта за проекта и някаква количествена спецификация ?
Тъй като съм електро проектант, има ли възможност проекта да претърпи корекция по тази си част и евентуално да добавим или махнем нещо по архитектурното разпределение ?
Благодаря предварително, проектите Ви са чудесни !
Здравейте, цената на проекта е посочена в страницата, както и какво е включено в нея. Ако искате да остойностим допълнителните (задължителни) проекти, пишете или звъннете по тел. Относно количествените сметки - обърнете внимание, че проектът е с дървена скелетна конструкция. Ако това е желания вид конструкция, пишете и ще Ви пуснем КС. Ако искате да се промени вида на конструкцията, то наличните КС няма да са Ви от полза. Относно промените - всичко може да се промени, като в зависимост от промяната може да се промени и цената на проекта. Поздрави!
може ли да преработите плана за двуфамилна къща за да се включа под ограничението за строителство по стопанска сметка до 100 м2
Здравейте, изискването за 100 м2 е за сграда, не за обект и в този смисъл преработването на къщата в двуфамилна няма да намали квадратурата. Ако искате площта да е под 100 м2 то говорим за изцяло нов проект. Поздрави!
Привет! В описанието за материалите по фасадата сте написали само минерална мазилка. В такъв случай стрехата от какъв материал е направена? Благодаря и поздравления за дизайна!
Здравейте, таблицата за материалите по фасадата визира основните материали, които присъстват в къщата (без да има претенциите, че изброява подробно всички използвани материали). Конкретно към въпроса Ви - къщата е със стреха, която може да се обработи по един от следните начини:
1. Оставя се видима дървената конструкция на стрехата - ребра и дъсчена обшивка
2. Поставя се дървена ламперия под ребрата (която скрива дървената конструкция на покрива) - визиите са именно от този вариант
3. Затваря се стрехата с панел (примерно Aquapanel), който се завършва с минерална мазилка.
Поздрави!