Гостевой дом
Информация за проекта:
- Проект ID: 292
- Место нахождения: деревня Белащица, муниципалитет Пловдив
- Фаза проекта: технический проект
- Цена: 28050 лв. (без ДДС)
- Дата завершения: 04.2016
- Этап строительства: В процессе стройки
- Тип крыши: Четырескатный
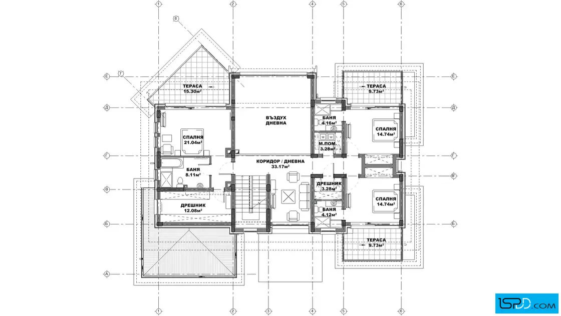
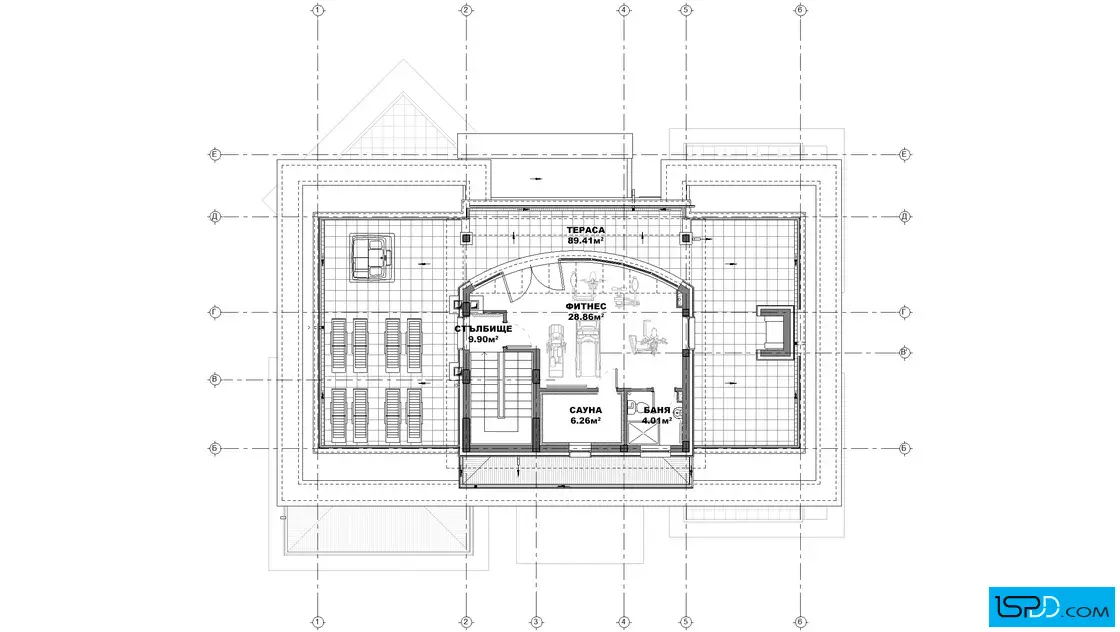
- Технически показатели
- Площадь зданий: 250 кв.м.
- Общая площадь: 790 кв.м.
- Габарити на сградата
- Широчина на сградата: 19.40 м.
- Дължина на сградата: 17.50 м.
- Функционалност
- Сутерен: Да
- Этажи: 3
- Комнаты: 8
- Спальни: 5
- Балконы: 4
- Веранда: 1
- Гараж: 2
- Бани/WC: 7
Информация за проекта:
Гостевой дом, расположенный в деревне Зая, муниципалитет Дряново
ЗАКУПУВАНЕ НА
ПРОЕКТ НА КЪЩА
Имате въпроси по проекта?
Ние сме тук да Ви помогнем!
Свържете се с нас сега!
(+359 887) 237 839
(+359 887) 213 099
























Коментари
Добър вечер ! бих искъл да попитам за повече подробности за този проект и дали е възможно да се махне подземния етаж и последния ? да остани само на 2 нива ? и разбира се евентуално да ми кажете приблизителна цена за строеж на този проект ? Благодаря предварително ! :)
Здравейте, можем без проблем да премахнем подземното ниво и последния етаж (покривна тераса) и къщата да остане на две нива. Ако изпълните проекта както е замислен, а именно завършите фасадата с предложената каменна облицовка, то строителната стойност ориентировъчно ще е около 450-500 евро/м2. Ако замените фасадата с обикновена мазилка, то строителната стойност неминуемо ще падне, но ще се загуби от визията. Точно остойностяване на проекта можете да получите от строителните фирми на база конкретния проект и местоположението на Вашия парцел. Поздрави!
Благодаря за одговора ! :) а имали някакъв план за вътрешно разпределение на стаите и просто искъм да е с по малко тоалетни ,стаи и спални ! мисълта ми е да съкратя малко РЗП площ . имам парцел 800 кв.м . и този проект ми взе очите и ума както го виждам на снимката така искъм и да е и в моя парцел но без басейна . :) за него имам съвсем различи планове как ще изглежда :) :) Благодаря предварително и отново поздрави за невероятния проект ! :)
Здравейте, на Вашата поща ще Ви изпратя разпределенията на двете нива. Всичко може да бъде променяно (намаляне на помещенията като брой и големина), НО имайте впредвид, че всяка промяна променя визията на къщата и в един момент крайният резултат може да не отговаря на очакванията Ви. Ние можем да проектираме къщата със сходна визия, но при едно драстично разместване на помещенията къщата ще изглежда различно. Поздрави!
Здравейте ! Къщата е невероятно красива и - външно - много функционална. Впечатлява от пръв поглед !
Попаднах на нея в търсене на НЕ частен-личен проект. Ако вътрешното разпределение позволява адаптирането на проекта за съответните цели, безусловно и в разширен план ще се възползвам/ме от него. Ето защо - моля , да ми /ни/предоставите разпределенията на двете нива , а в последствие ще Ви задам и допълнителните възникващи въпроси.
Поздрави - Л. Златева
Здравейте,
благодаря за изразеното положително мнение за този проект на къща. В посочения от Вас e-mail съм изпратил исканите разпределения. Поздрави!
Значи по 400 евро на квадрат, но по кое да изчисля по РЗП-то ли или по застроената площ... защото ако е по застроената площ Застроена площ: 250 кв.м. - 100 000 евро е приемливо, а за РЗП 790 кв.м. - 316 000 евро малко невъзможно ми идва хах. По кое се изчислява по застроената площ ли
Здравейте, винаги се калкулира строителната стойност по РЗП, а не по застроена площ. Цената, която съм описал е ориентировъчна, но близка до истинската. Няма как къща от 790 кв. м. да Ви струва (до ключ) 100 000 евро. Затова Ви ориентираме в прогнозна строителна стойност, за да можете да реализирате къща по Вашите възможности. Поздрави!
Да разбира се, но самия модел е много хубав и винаги можете да го напаснете примерно, без подземния етаж РЗП-то да дойде 400 квадрата и по 250 евро на квадрат да кажем 100 000 вече е възможно. Имам един хубав имот на Нос Калиакра, разделен на две части, ако успея скоро да продам едната част с другите пари смятам да строя там, а те къщите ви са много красиви и след това 3-4 пъти ще си качат цената. Наистина много хубави проекти. Поздравления, дано ми се случат нещата и ще се свържем !
Благодаря за изразеното мнение!
Здравейте! Моля да ми дадете точните размери на въпросния парцел който е на проекта
Здравейте, конкретният парцел е с доста неправилна форма, но грубо е 30 на 55 м. Поздрави!
Интересувам се от тази къща Проект ID: 292. Може ли да ми пратите плана на къщата за да се ориентирам във вътрешното разположението.
Здравейте, изпратил съм разпределенията по нива на посочения от Вас e-mail. Поздрави!
Здравейте, много добър проект може ли да ми изпратите вътрешното разпределение. Благодаря!
Здравейте, изпратил съм разпределенията по нива на посочения от Вас e-mail. Поздрави!
Здравейте!
Впечатлена съм от този проект и бих искала да помоля, ако е възможно, да ми изпратите вътрешното разпределение на тази прекрасна къща.
Благодаря Ви предварително!
Здравейте,
разпределенията по нива са изпратени на Вашата поща. Ако имате въпроси, ние сме на разположение.
Поздрави!
Добър вечер ! бих искъл да попитам за повече подробности за този проект ,и бих искал да помоля, ако е възможно, да ми изпратите вътрешното разпределение на тази къща.
Благодаря Ви предварително!
Здравейте, разпределенията по нива са качени вече и можете да ги разгледате. Ако имате други въпроси, предлагам да се свържете с нас на посочените в сайта телефони. Поздрави!
Здравейте, има ли как да ми пратите списък с нужните материали Поздрави!
Здравейте, заедно с проекта получавате и пълна количествена сметка по всички части. Поздрави!
Здравейте, да попитам напримерно ще решим да закупим във кавко състояние ще ми бъде продаден в дигитално или на хартия Поздрави!
Здравейте, при закупуване на проекта, Вие ще го получите в дигитален формат (пълен архив по всички части) и три копия с подписи и печати за община. Поздрави!
Zdraveyte
Vismoshen li e podoben prekrasen proekt s basein za po malik lot?
Nasheto e 15 metera kim ulitzata shirina i 25 metera dilbotchina.
Здравейте, този проект няма да може да се побере във Вашия имот. Можем да изработим изцяло нов, който да има сходна визия, но функционално ще е съвсем друг. Поздрави!