Архитектурно студио
Работаем в любом масштабе и
в любой сфере
архитекти София
Создаем пространства в синхроне
с иx
окружением
Архитектурно студио
Мы объединяем естественный рельеф с
человеческой
находчивости
Архитектурно студио
Мы реализуем динамичные, инновационные и
устойчивые
проекты

Проект на къща в гр. Ботевград

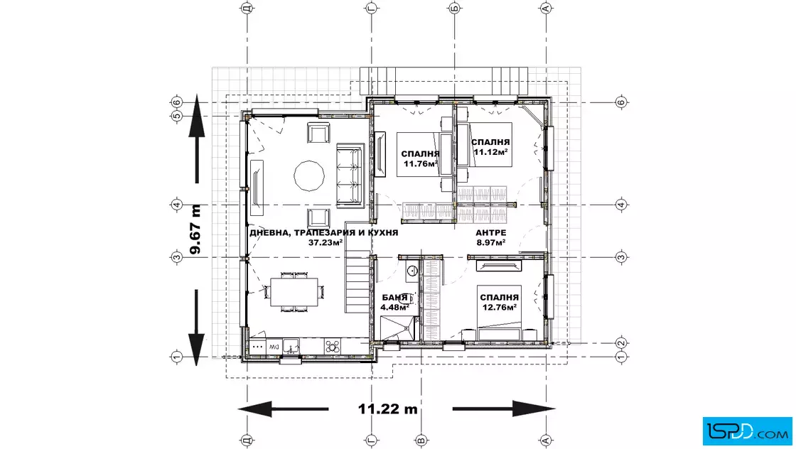
Информация за проекта:

  • Проект ID: 838
  • Место нахождения: в.з. Зелин, гр. Ботевград
  • Фаза проекта: технический проект
  • Цена: 5900 лв. (без ДДС)
  • Этап строительства: Проект
  • Тип крыши: Двускатный
  • Технически показатели
  • Площадь зданий: 100 кв.м.
  • Общая площадь: 100 кв.м.
  • Габарити на сградата
  • Широчина на сградата: 11.20 м.
  • Дължина на сградата: 9.70 м.
  • Функционалност
  • Сутерен: Не
  • Этажи: 1
  • Комнаты: 4
  • Спальни: 3
  • Бани/WC: 1

Информация за проекта:

Проект на къща в гр. Ботевград проектирана от архитектурно студио Ай Ес Пи Дигитален Дизайн

838 5900

ЗАКУПУВАНЕ НА
ПРОЕКТ НА КЪЩА

Имате въпроси по проекта?
Ние сме тук да Ви помогнем!
Свържете се с нас сега!

(+359 887) 237 839
(+359 887) 213 099

Планове:

План на първи етаж

План на първи етаж

Ситуиране на къщата в парцела:

Жилищно строителство

Жилищно строителство

Вилно строителство

Вилно строителство

Коментари

Няма добавени коментари - пишете ни от формата по-долу