Проект на къща в м. Бонсови Поляни
Информация за проекта:
- Проект ID: 853
- Место нахождения: р-н Овча Купел, гр. София
- Фаза проекта: технический проект
- Цена: 11980 лв. (без ДДС)
- Этап строительства: Проект
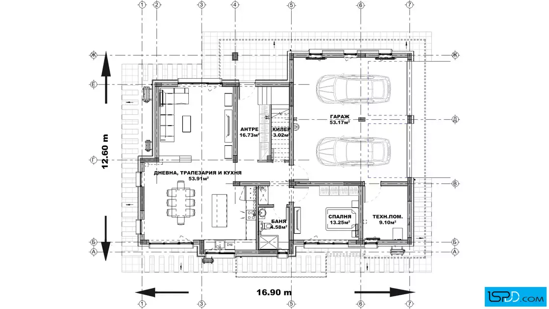
- Тип крыши: Многоскатен
- Технически показатели
- Площадь зданий: 185 кв.м.
- Общая площадь: 331 кв.м.
- Габарити на сградата
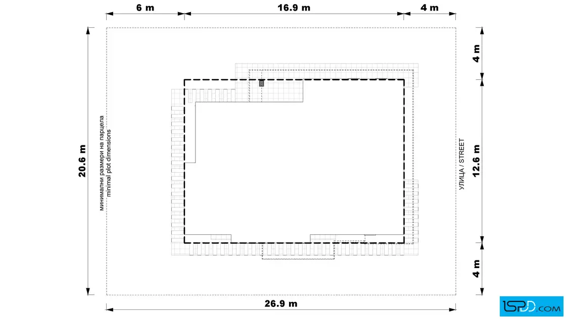
- Широчина на сградата: 16.90 м.
- Дължина на сградата: 12.60 м.
- Функционалност
- Сутерен: Не
- Этажи: 2
- Комнаты: 5
- Спальни: 4
- Балконы: 2
- Гараж: 2
- Бани/WC: 3
Информация за проекта:
Проект на къща в м. Бонсови Поляни проектирана от архитектурно студио Ай Ес Пи Дигитален Дизайн
ЗАКУПУВАНЕ НА
ПРОЕКТ НА КЪЩА
Имате въпроси по проекта?
Ние сме тук да Ви помогнем!
Свържете се с нас сега!
(+359 887) 237 839
(+359 887) 213 099
























Коментари