Проект на къща в р-н Панчарево
Информация за проекта:
- Проект ID: 895
- Место нахождения: в.з. Градище, р-н „Панчарево“, СО
- Фаза проекта: технический проект
- Цена: 6400 лв. (без ДДС)
- Этап строительства: строеж
- Тип крыши: Двускатный
- Технически показатели
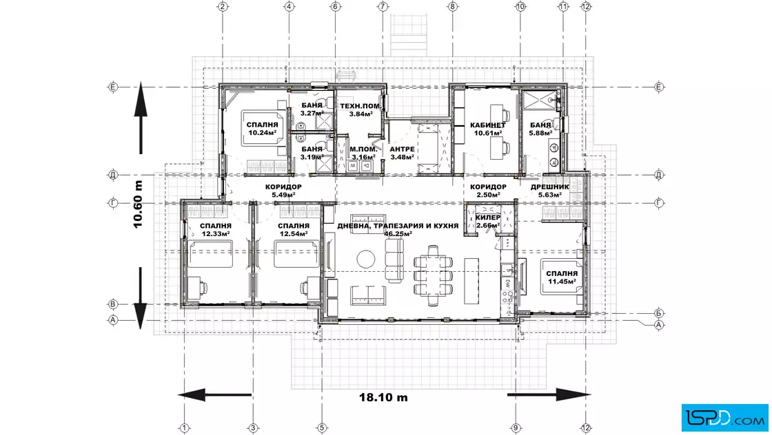
- Площадь зданий: 170 кв.м.
- Общая площадь: 170 кв.м.
- Габарити на сградата
- Широчина на сградата: 18.10 м.
- Дължина на сградата: 10.60 м.
- Функционалност
- Сутерен: Не
- Этажи: 1
- Комнаты: 6
- Спальни: 4
- Бани/WC: 3
Информация за проекта:
Проект на къща в р-н Панчарево проектирана от архитектурно студио Ай Ес Пи Дигитален Дизайн
ЗАКУПУВАНЕ НА
ПРОЕКТ НА КЪЩА
Имате въпроси по проекта?
Ние сме тук да Ви помогнем!
Свържете се с нас сега!
(+359 887) 237 839
(+359 887) 213 099























Коментари
Здравейте! Каква би била ориентировъчната цена за строеж на сглобяема къща по този проект?
Здравейте, отговорили сме на коментара Ви на посочения от Вас мейл. Поздрави!