Проект на къща в с. Лобош
Информация за проекта:
- Проект ID: 896
- Место нахождения: с. Лобош, общ. Ковачевци
- Фаза проекта: технический проект
- Цена: 13520 лв. (без ДДС)
- Этап строительства: строеж
- Тип крыши: Двускатный
- Технически показатели
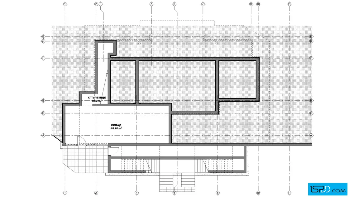
- Площадь зданий: 141 кв.м.
- Общая площадь: 375 кв.м.
- Габарити на сградата
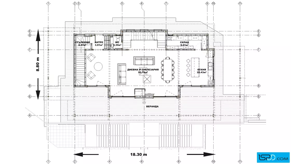
- Широчина на сградата: 18.30 м.
- Дължина на сградата: 8.80 м.
- Функционалност
- Сутерен: Да
- Этажи: 2
- Комнаты: 5
- Спальни: 4
- Веранда: 1
- Бани/WC: 3
Информация за проекта:
Проект на къща в с. Лобош проектирана от архитектурно студио Ай Ес Пи Дигитален Дизайн
ЗАКУПУВАНЕ НА
ПРОЕКТ НА КЪЩА
Имате въпроси по проекта?
Ние сме тук да Ви помогнем!
Свържете се с нас сега!
(+359 887) 237 839
(+359 887) 213 099

























Коментари