Проект на къща в с. Гара Елин Пелин
Информация за проекта:
- Проект ID: 897
- Место нахождения: с. Гара Елин Пелин, общ. Елин Пелин
- Фаза проекта: технический проект
- Цена: 15660 лв. (без ДДС)
- Этап строительства: Проект
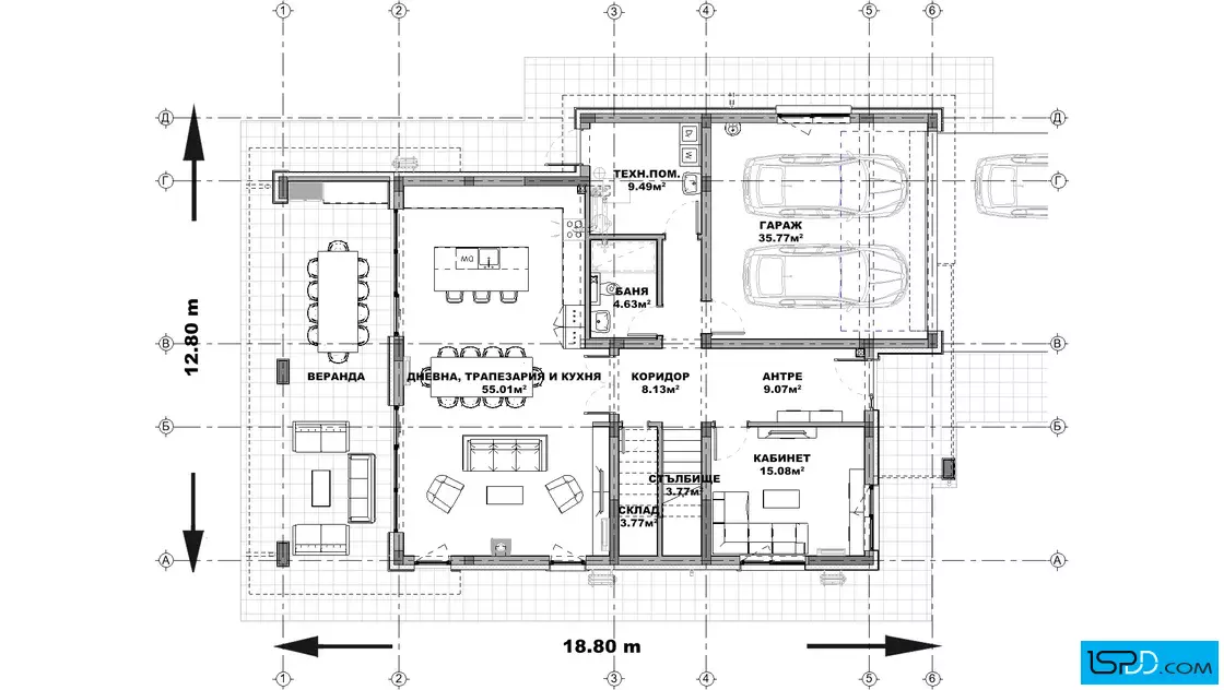
- Тип крыши: Многоскатен
- Технически показатели
- Площадь зданий: 175 кв.м.
- Общая площадь: 436 кв.м.
- Габарити на сградата
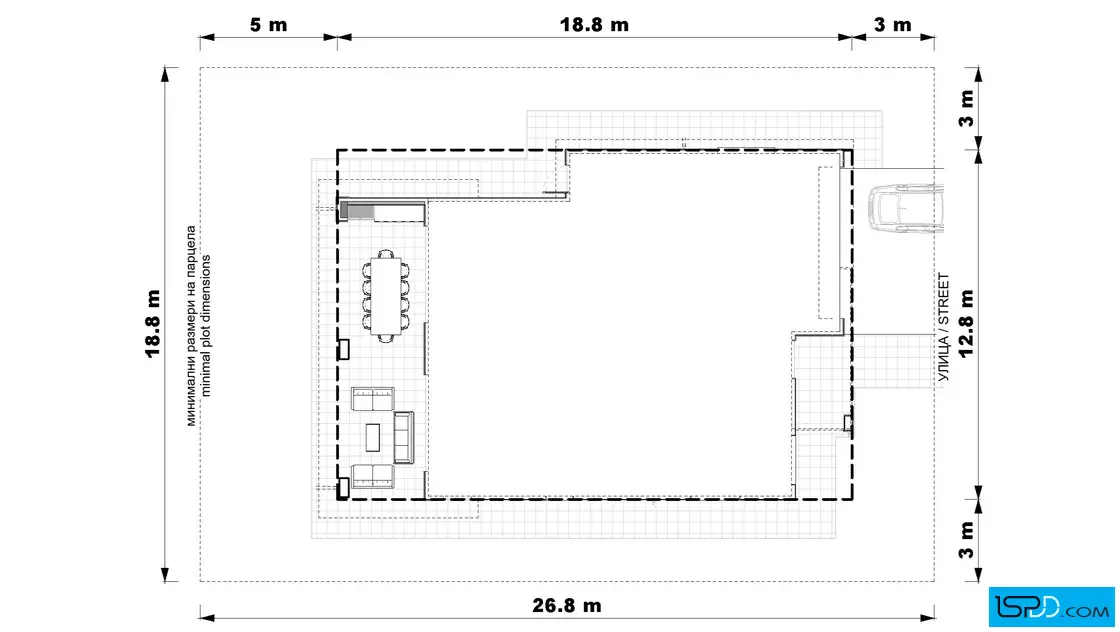
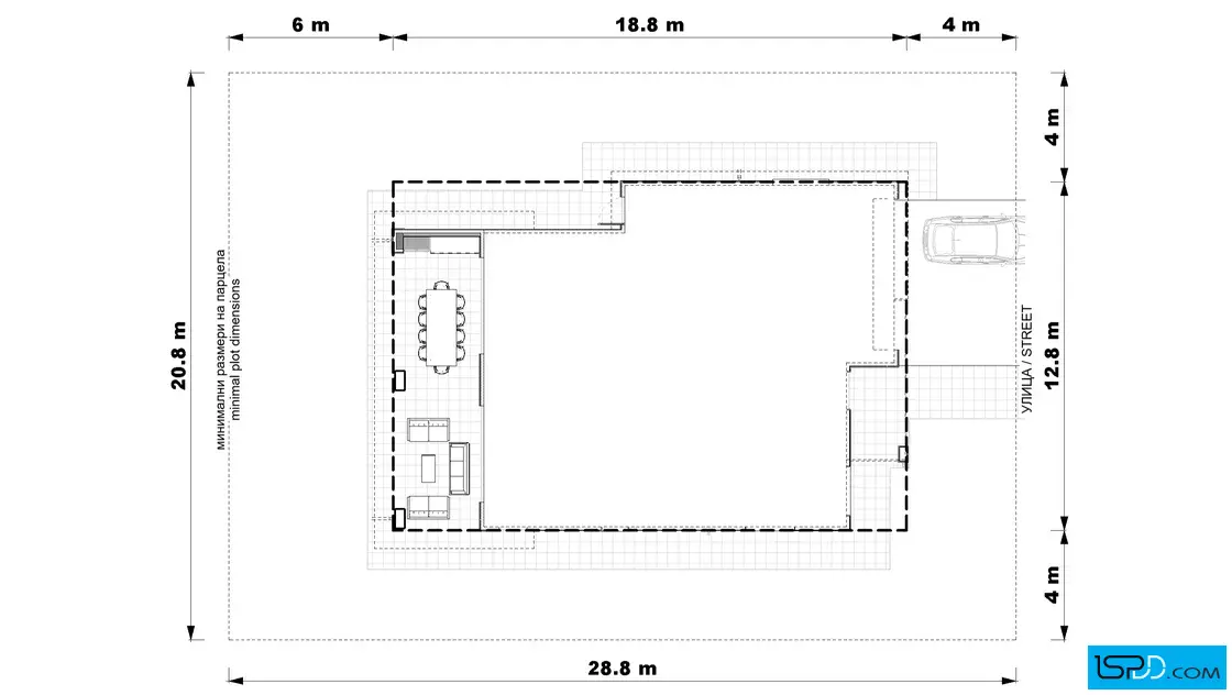
- Широчина на сградата: 18.80 м.
- Дължина на сградата: 12.80 м.
- Функционалност
- Сутерен: Не
- Этажи: 3
- Комнаты: 6
- Спальни: 3
- Балконы: 2
- Веранда: 1
- Гараж: 2
- Бани/WC: 4
Информация за проекта:
Проект на къща в с. Гара Елин Пелин проектирана от архитектурно студио Ай Ес Пи Дигитален Дизайн
ЗАКУПУВАНЕ НА
ПРОЕКТ НА КЪЩА
Имате въпроси по проекта?
Ние сме тук да Ви помогнем!
Свържете се с нас сега!
(+359 887) 237 839
(+359 887) 213 099

























Коментари