Архитектурно студио
Работаем в любом масштабе и
в любой сфере
архитекти София
Создаем пространства в синхроне
с иx
окружением
Архитектурно студио
Мы объединяем естественный рельеф с
человеческой
находчивости
Архитектурно студио
Мы реализуем динамичные, инновационные и
устойчивые
проекты

Проект на къща в с. Кривина

Информация за проекта:

  • Проект ID: 901
  • Место нахождения: с. Кривина, р-н Панчарево, СО
  • Фаза проекта: технический проект
  • Цена: 12090 лв. (без ДДС)
  • Этап строительства: Проект
  • Тип крыши: Многоскатен
  • Технически показатели
  • Площадь зданий: 120 кв.м.
  • Общая площадь: 334 кв.м.
  • Габарити на сградата
  • Широчина на сградата: 15.10 м.
  • Дължина на сградата: 9.00 м.
  • Функционалност
  • Сутерен: Не
  • Этажи: 3
  • Комнаты: 5
  • Спальни: 3
  • Балконы: 2
  • Веранда: 1
  • Бани/WC: 2

Информация за проекта:

Проект на къща в с. Кривина проектирана от архитектурно студио Ай Ес Пи Дигитален Дизайн

901 12090

ЗАКУПУВАНЕ НА
ПРОЕКТ НА КЪЩА

Имате въпроси по проекта?
Ние сме тук да Ви помогнем!
Свържете се с нас сега!

(+359 887) 237 839
(+359 887) 213 099

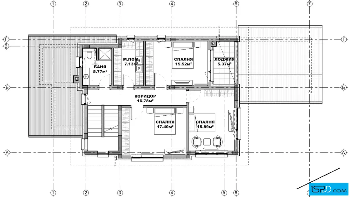
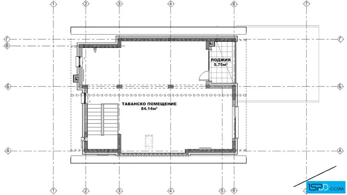
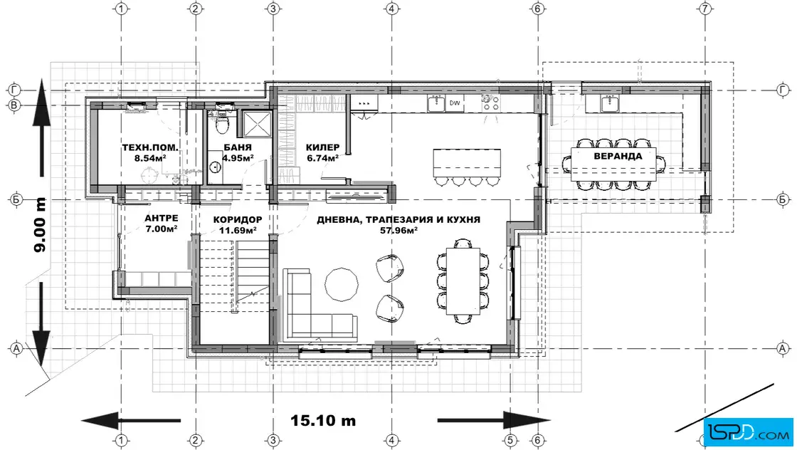
Планове:

План на първи етаж

План на първи етаж

План на втори етаж

План на втори етаж

План на трети етаж

План на трети етаж

Ситуиране на къщата в парцела:

Жилищно строителство

Жилищно строителство

Вилно строителство

Вилно строителство

Коментари

Няма добавени коментари - пишете ни от формата по-долу