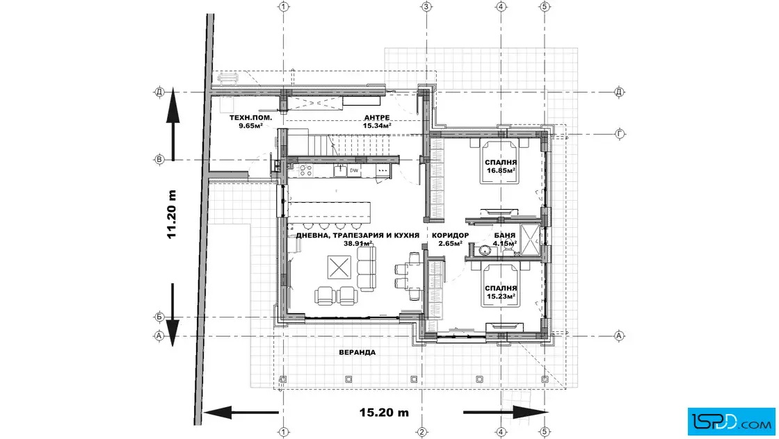
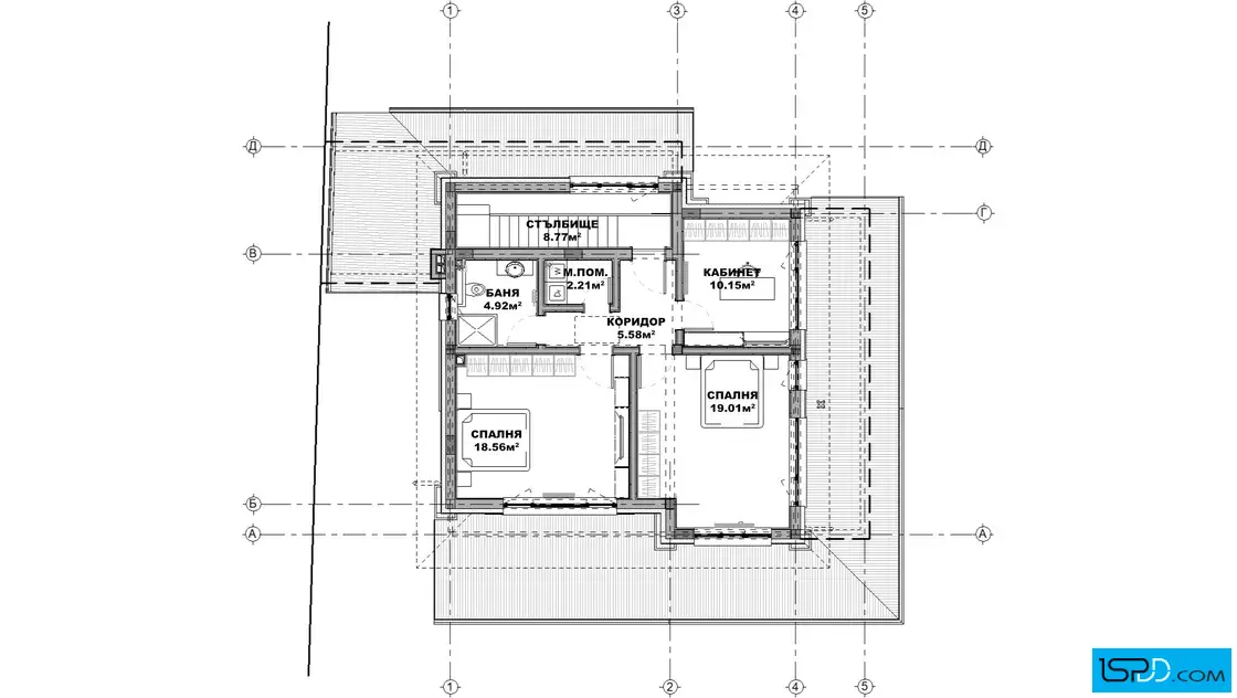
Проект на къща в гр. Перник
Информация за проекта:
- Проект ID: 902
- Место нахождения: гр. Перник
- Фаза проекта: технический проект
- Цена: 8240 лв. (без ДДС)
- Этап строительства: Проект
- Тип крыши: Многоскатен
- Технически показатели
- Площадь зданий: 131 кв.м.
- Общая площадь: 224 кв.м.
- Габарити на сградата
- Широчина на сградата: 15.20 м.
- Дължина на сградата: 11.20 м.
- Функционалност
- Сутерен: Не
- Этажи: 2
- Комнаты: 6
- Спальни: 4
- Веранда: 1
- Бани/WC: 2
Информация за проекта:
Проект на къща в гр. Перник проектирана от архитектурно студио Ай Ес Пи Дигитален Дизайн
ЗАКУПУВАНЕ НА
ПРОЕКТ НА КЪЩА
Имате въпроси по проекта?
Ние сме тук да Ви помогнем!
Свържете се с нас сега!
(+359 887) 237 839
(+359 887) 213 099
























Коментари