Архитектурно студио
Работаем в любом масштабе и
в любой сфере
архитекти София
Создаем пространства в синхроне
с иx
окружением
Архитектурно студио
Мы объединяем естественный рельеф с
человеческой
находчивости
Архитектурно студио
Мы реализуем динамичные, инновационные и
устойчивые
проекты

Проект на мострена къща

Информация за проекта:

  • Проект ID: 905
  • Фаза проекта: технический проект
  • Цена: 5900 лв. (без ДДС)
  • Этап строительства: Проект
  • Тип крыши: Двускатный
  • Технически показатели
  • Площадь зданий: 100 кв.м.
  • Общая площадь: 100 кв.м.
  • Габарити на сградата
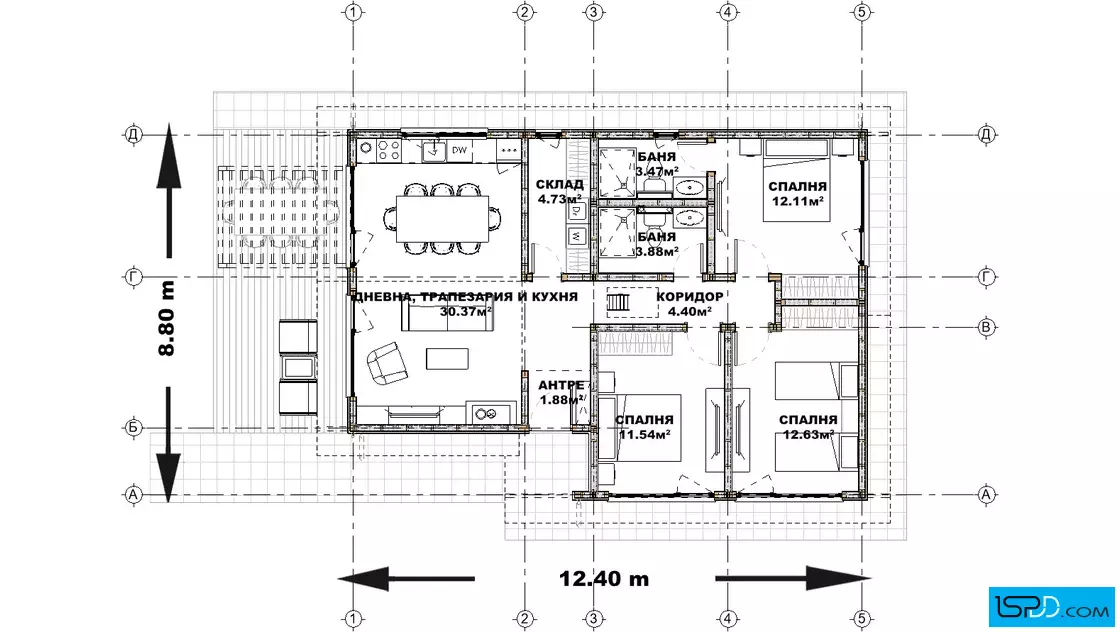
  • Широчина на сградата: 12.40 м.
  • Дължина на сградата: 8.80 м.
  • Функционалност
  • Сутерен: Не
  • Этажи: 1
  • Комнаты: 4
  • Спальни: 3
  • Бани/WC: 2

Информация за проекта:

Проект на мострена къща проектирана от архитектурно студио Ай Ес Пи Дигитален Дизайн

905 5900

ЗАКУПУВАНЕ НА
ПРОЕКТ НА КЪЩА

Имате въпроси по проекта?
Ние сме тук да Ви помогнем!
Свържете се с нас сега!

(+359 887) 237 839
(+359 887) 213 099

Планове:

План на първи етаж

План на първи етаж

Ситуиране на къщата в парцела:

Жилищно строителство

Жилищно строителство

Вилно строителство

Вилно строителство

Коментари

Константина
Константина

Здравейте,каква е цената на този проект и какво включва?
Колко струва кв.м ?
Монтажа влиза ли в цената

Илиан Петков
Илиан Петков

Здравейте, ще Ви изпратим актуална цена за изработване на проектната документация на посочения имейл. Ние сме архитектурно студио и можем да се ангажираме САМО с проектите. Изпълнението и монтажа на къщата се извършва от строителни фирми, за което трябва да получите цена от избраната от Вас фирма и в зависимост от конкретната технология. Поздрави!