Архитектурно студио
Работаем в любом масштабе и
в любой сфере
архитекти София
Создаем пространства в синхроне
с иx
окружением
Архитектурно студио
Мы объединяем естественный рельеф с
человеческой
находчивости
Архитектурно студио
Мы реализуем динамичные, инновационные и
устойчивые
проекты

Проект на къща в с. Кладница

Информация за проекта:

  • Проект ID: 941
  • Место нахождения: с. Кладница, общ. Перник
  • Фаза проекта: технический проект
  • Этап строительства: строеж
  • Тип крыши: Двускатный
  • Технически показатели
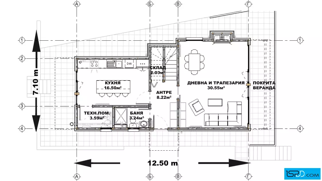
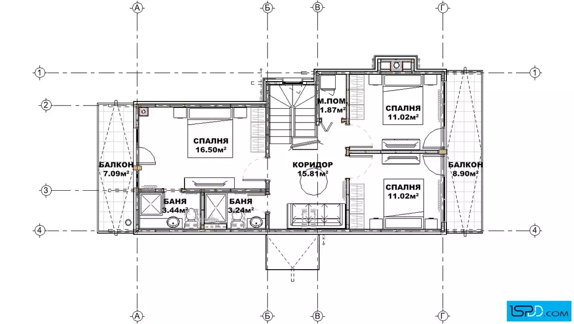
  • Площадь зданий: 76 кв.м.
  • Общая площадь: 167 кв.м.
  • Габарити на сградата
  • Широчина на сградата: 12.50 м.
  • Дължина на сградата: 7.10 м.
  • Функционалност
  • Сутерен: Не
  • Этажи: 2
  • Комнаты: 5
  • Спальни: 3
  • Балконы: 2
  • Веранда: 1
  • Бани/WC: 3

Информация за проекта:

Тази ваканционна къща е разположена в подножието на Витоша, където динамичният и стръмен терен изисква архитектура, която умело се вписва в естествените линии на планината. Формата ѝ е подчертана от изразителен двускатен покрив с голям наклон, който не само следва планинския силует, но и придава характерен алпийски облик. Масивната покривна линия приютява фасади, облечени в комбинация от каменна и дървена облицовка – естествени материали, които създават усещане за топлина и връзка с околната природа.

Къщата е развита на два етажа – компактна по форма, но богата на пространствени преживявания. Дневната зона на първия етаж е отворена към панорамата чрез големи площни остъклявания, които превръщат гледката към планината в живо платно. Светлината прониква щедро във вътрешността, като обединява дома с природата отвън. Вторият етаж е по-интимен – с три спални и бани, които осигуряват уединение и комфорт.

Покритата веранда е естествено продължение на дневната, предлагаща убежище сред зеленина и гледки към долината. Каменните детайли при основата и дървените елементи по фасадата придават стабилност и автентичност, характерни за планинските къщи.

Това е дом, който носи хармония между архитектура и природа – място, където всяка сутрин започва с изглед към Витоша и усещане за свобода.

941 N/A

Планове:

План на първи етаж

План на първи етаж

План на втори етаж

План на втори етаж

Ситуиране на къщата в парцела:

Жилищно строителство

Жилищно строителство

Вилно строителство

Вилно строителство

Коментари

Няма добавени коментари - пишете ни от формата по-долу