Архитектурно студио
Работаем в любом масштабе и
в любой сфере
архитекти София
Создаем пространства в синхроне
с иx
окружением
Архитектурно студио
Мы объединяем естественный рельеф с
человеческой
находчивости
Архитектурно студио
Мы реализуем динамичные, инновационные и
устойчивые
проекты

Проект на къща в с. Калипетрово

Информация за проекта:

  • Проект ID: 946
  • Место нахождения: с. Калипетрово, общ. Силистра
  • Фаза проекта: технический проект
  • Этап строительства: Проект
  • Тип крыши: Многоскатен
  • Технически показатели
  • Площадь зданий: 185 кв.м.
  • Общая площадь: 372 кв.м.
  • Габарити на сградата
  • Широчина на сградата: 29.00 м.
  • Дължина на сградата: 10.70 м.
  • Функционалност
  • Сутерен: Не
  • Этажи: 2
  • Комнаты: 6
  • Спальни: 4
  • Балконы: 2
  • Веранда: 2
  • Гараж: 2
  • Бани/WC: 4

Информация за проекта:

Двуетажната къща в с. Калипетрово впечатлява с изтънчена класическа визия и усещане за средиземноморска елегантност. Компактната ѝ форма е подчертана от хармонични пропорции и многоскатен покрив, покрит с керамични керемиди, които придават топлина и уют. Просторните покрити зони под аркада и голямата веранда с барбекю създават плавен преход между интериора и двора – идеално място за спокойни следобеди и семейни вечери на открито.

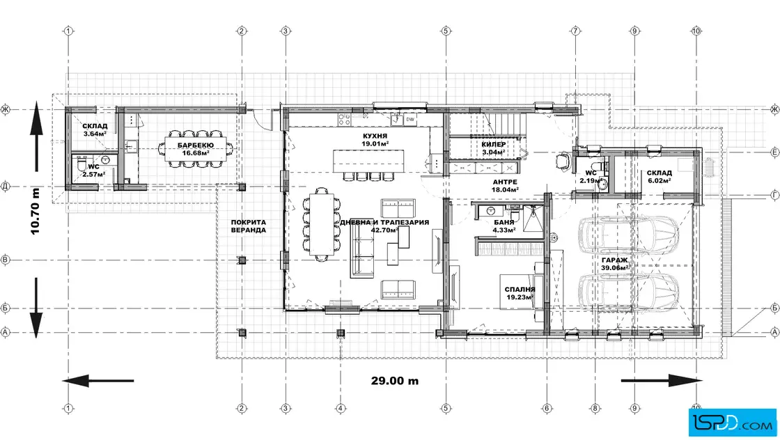
На първия етаж са обединени дневната зона, кухнята и трапезарията, които се отварят към верандата чрез широки витрини. Светлината навлиза щедро, подчертавайки усещането за простор и лекота. Разпределението е практично и осигурява комфорт на всяко семейство, като включва и обособени сервизни помещения и гараж за две коли.

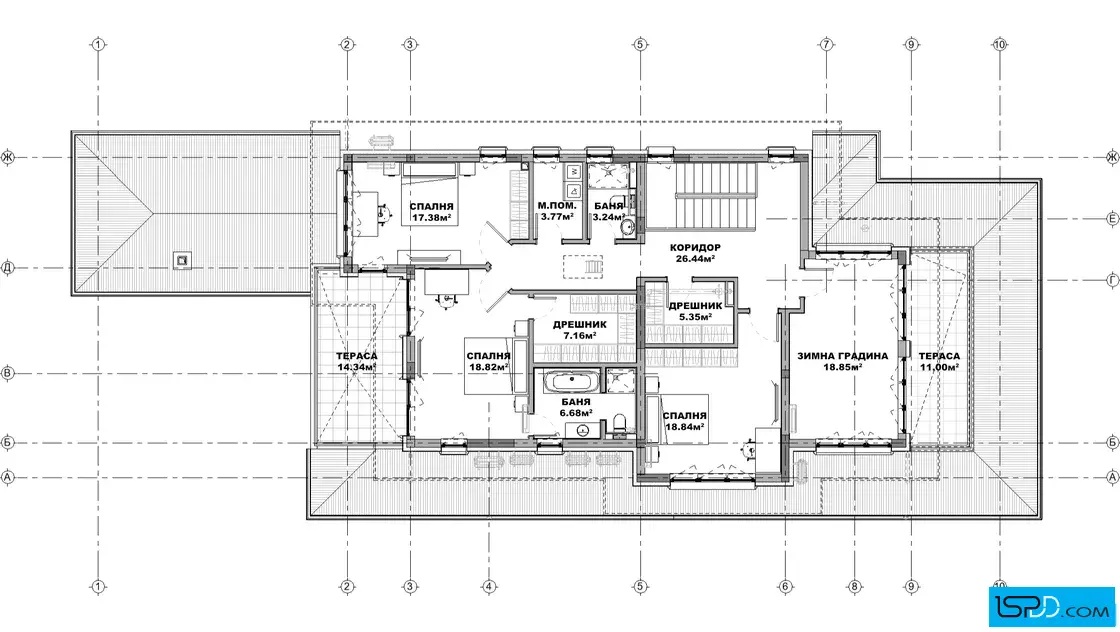
На втория етаж са разположени три спални и две бани, сред които се откроява голямата родителска спалня със собствена баня и дрешник. От нея се излиза на просторна тераса с гледка към двора – естествено продължение на личното пространство.

Фасадата е решена с минерална мазилка и декоративни елементи, които придават характер и стил. Външната топлоизолация гарантира енергийна ефективност през всички сезони, а монолитната стоманобетонна конструкция осигурява стабилност и дълговечност.

Тази къща съчетава класическа естетика с модерна функционалност – дом, който носи хармония, слънце и усещане за вечна почивка.

946 N/A

Планове:

План на първи етаж

План на първи етаж

План на втори етаж

План на втори етаж

Ситуиране на къщата в парцела:

Жилищно строителство

Жилищно строителство

Вилно строителство

Вилно строителство

Коментари

Няма добавени коментари - пишете ни от формата по-долу