Проект на къща в с. Горни Окол
Информация за проекта:
- Проект ID: 852
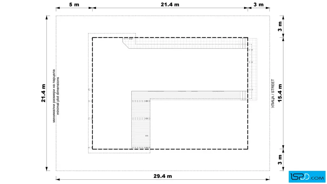
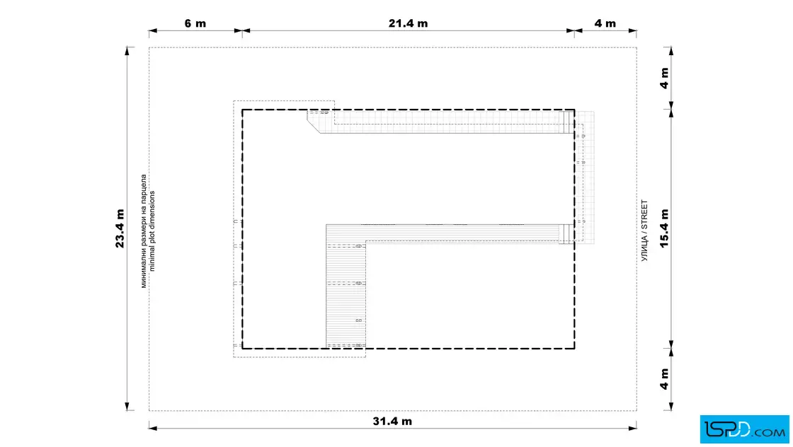
- Место нахождения: с. Горни Окол, общ. Самоков
- Фаза проекта: технический проект
- Цена: 6400 лв. (без ДДС)
- Этап строительства: Проект
- Тип крыши: Двускатный
- Технически показатели
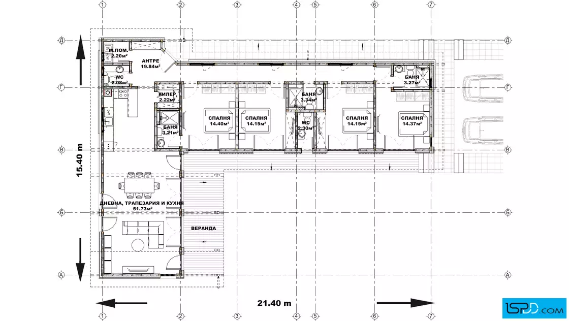
- Площадь зданий: 174 кв.м.
- Общая площадь: 174 кв.м.
- Габарити на сградата
- Широчина на сградата: 21.40 м.
- Дължина на сградата: 15.40 м.
- Функционалност
- Сутерен: Не
- Этажи: 1
- Комнаты: 5
- Спальни: 4
- Веранда: 1
- Бани/WC: 5
Информация за проекта:
Проект на къща в с. Горни Окол проектирана от архитектурно студио Ай Ес Пи Дигитален Дизайн
ЗАКУПУВАНЕ НА
ПРОЕКТ НА КЪЩА
Имате въпроси по проекта?
Ние сме тук да Ви помогнем!
Свържете се с нас сега!
(+359 887) 237 839
(+359 887) 213 099























Коментари
Здравейте, имам запитване за ID: D12 разглеждах вашите промоции. Моля за повече информация
Здравейте, какво конкретно Ви интересува по проектите? Ако въпросите Ви са специфични, можете да се свържете с нас на посочените телефони, за да проведем детайлен разговор. Поздрави!