Проект на двуфамилна къща в гр. София
Информация за проекта:
- Проект ID: 928
- Место нахождения: гр. София
- Фаза проекта: технический проект
- Этап строительства: Проект
- Тип крыши: Двускатный
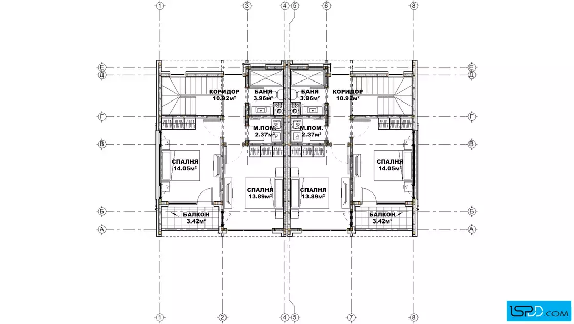
- Технически показатели
- Площадь зданий: 112 кв.м.
- Общая площадь: 230 кв.м.
- Габарити на сградата
- Широчина на сградата: 13.70 м.
- Дължина на сградата: 9.30 м.
- Функционалност
- Сутерен: Не
- Этажи: 2
- Комнаты: 6
- Спальни: 4
- Балконы: 2
- Бани/WC: 4
Информация за проекта:
Проектът представя модерна двуфамилна къща с компактна градска форма, създадена за динамичен семеен живот в столицата. Сградата е на два етажа и използва дървена скелетна конструкция, което ѝ придава лекота, устойчивост и приятно естествено усещане. Архитектурният облик е съвременен – с каменна облицовка, HPL панели и метални акценти, допълнени от широка дограма с двоен или троен стъклопакет. Площното остъкляване позволява светлината да навлиза свободно и създава връзка между вътрешното пространство и градската среда.
Двата етажа оформят функционално разпределение, което осигурява комфорт на всяко семейство. На първото ниво се развива просторна дневна зона – място за общи моменти, свободно движение и естествено осветление. От нея може да се осигури плавен преход към външните пространства около сградата. Вторият етаж включва две спални и обща баня за етажа.
Многослойните стени с топлоизолация от каменна вата гарантират уют през всички сезони, а двускатният покрив с метално покритие подчертава модерния характер на къщата. Терасите на втория етаж добавят още пространства за отдих навън и визуална връзка с околността. Всяка част от проекта носи чувство за подреденост, сигурност и съвременен начин на живот.
























Коментари