Архитектурно студио
Работаем в любом масштабе и
в любой сфере
архитекти София
Создаем пространства в синхроне
с иx
окружением
Архитектурно студио
Мы объединяем естественный рельеф с
человеческой
находчивости
Архитектурно студио
Мы реализуем динамичные, инновационные и
устойчивые
проекты

Проект на къща в гр. София

Информация за проекта:

  • Проект ID: 844
  • Место нахождения: кв. Драгалевци, гр. София
  • Фаза проекта: технический проект
  • Цена: 18350 лв. (без ДДС)
  • Этап строительства: Проект
  • Тип крыши: Плоской
  • Технически показатели
  • Площадь зданий: 121 кв.м.
  • Общая площадь: 513 кв.м.
  • Габарити на сградата
  • Широчина на сградата: 15.80 м.
  • Дължина на сградата: 8.50 м.
  • Функционалност
  • Сутерен: Да
  • Этажи: 3
  • Комнаты: 5
  • Спальни: 4
  • Балконы: 2
  • Гараж: 2
  • Бани/WC: 6

Информация за проекта:

Проект на къща в гр. София проектирана от архитектурно студио Ай Ес Пи Дигитален Дизайн

844 18350

ЗАКУПУВАНЕ НА
ПРОЕКТ НА КЪЩА

Имате въпроси по проекта?
Ние сме тук да Ви помогнем!
Свържете се с нас сега!

(+359 887) 237 839
(+359 887) 213 099

Планове:

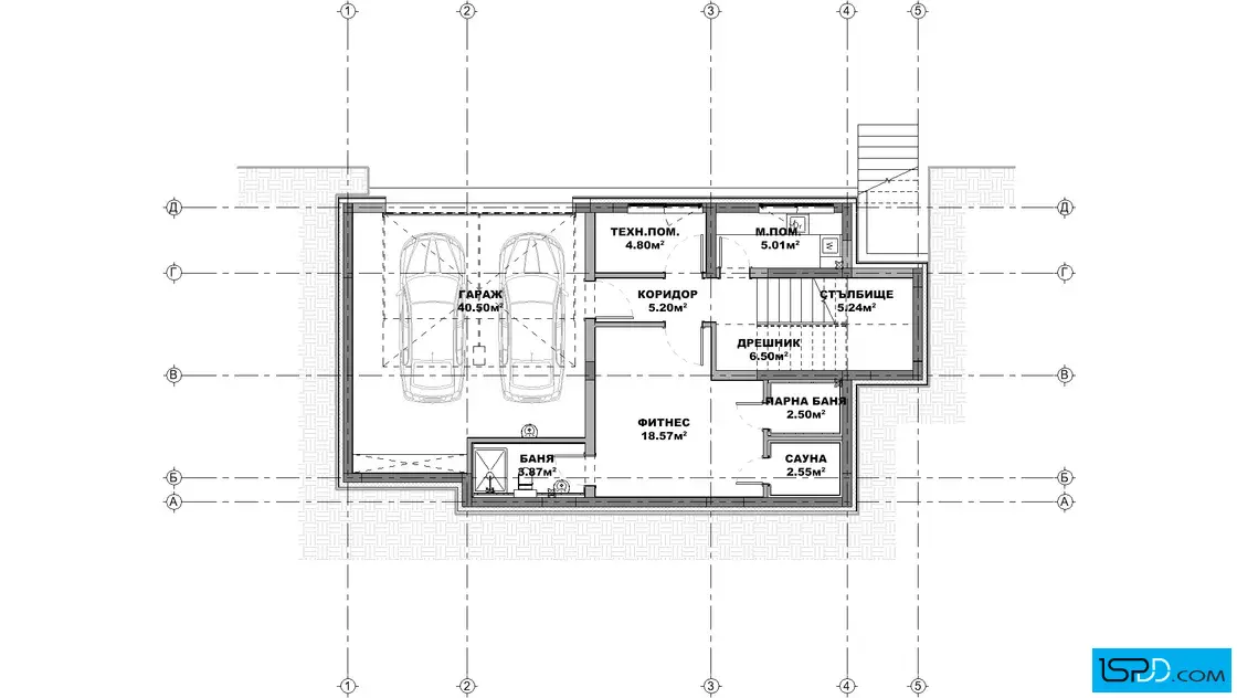
План на подземен етаж

План на подземен етаж

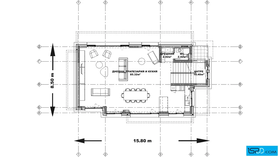
План на първи етаж

План на първи етаж

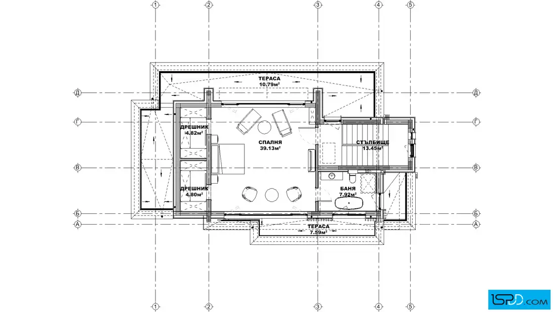
План на втори етаж

План на втори етаж

План на трети етаж

План на трети етаж

Ситуиране на къщата в парцела:

Жилищно строителство

Жилищно строителство

Вилно строителство

Вилно строителство

Коментари

Няма добавени коментари - пишете ни от формата по-долу