Архитектурно студио
Работаем в любом масштабе и
в любой сфере
архитекти София
Создаем пространства в синхроне
с иx
окружением
Архитектурно студио
Мы объединяем естественный рельеф с
человеческой
находчивости
Архитектурно студио
Мы реализуем динамичные, инновационные и
устойчивые
проекты

Проект на къща в с. Герман

Информация за проекта:

  • Проект ID: 858
  • Место нахождения: с. Герман, р-н Панчарево, гр. София
  • Фаза проекта: технический проект
  • Цена: 15200 лв. (без ДДС)
  • Этап строительства: В процессе стройки
  • Тип крыши: Четырескатный
  • Технически показатели
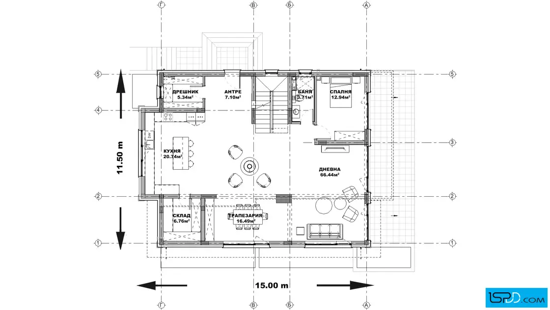
  • Площадь зданий: 166 кв.м.
  • Общая площадь: 423 кв.м.
  • Габарити на сградата
  • Широчина на сградата: 15.00 м.
  • Дължина на сградата: 11.50 м.
  • Функционалност
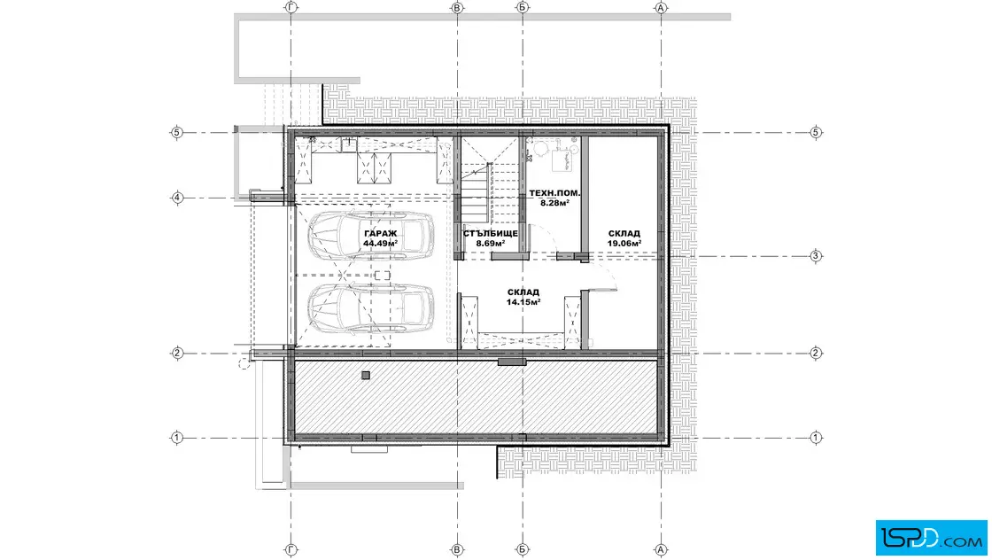
  • Сутерен: Да
  • Этажи: 2
  • Комнаты: 5
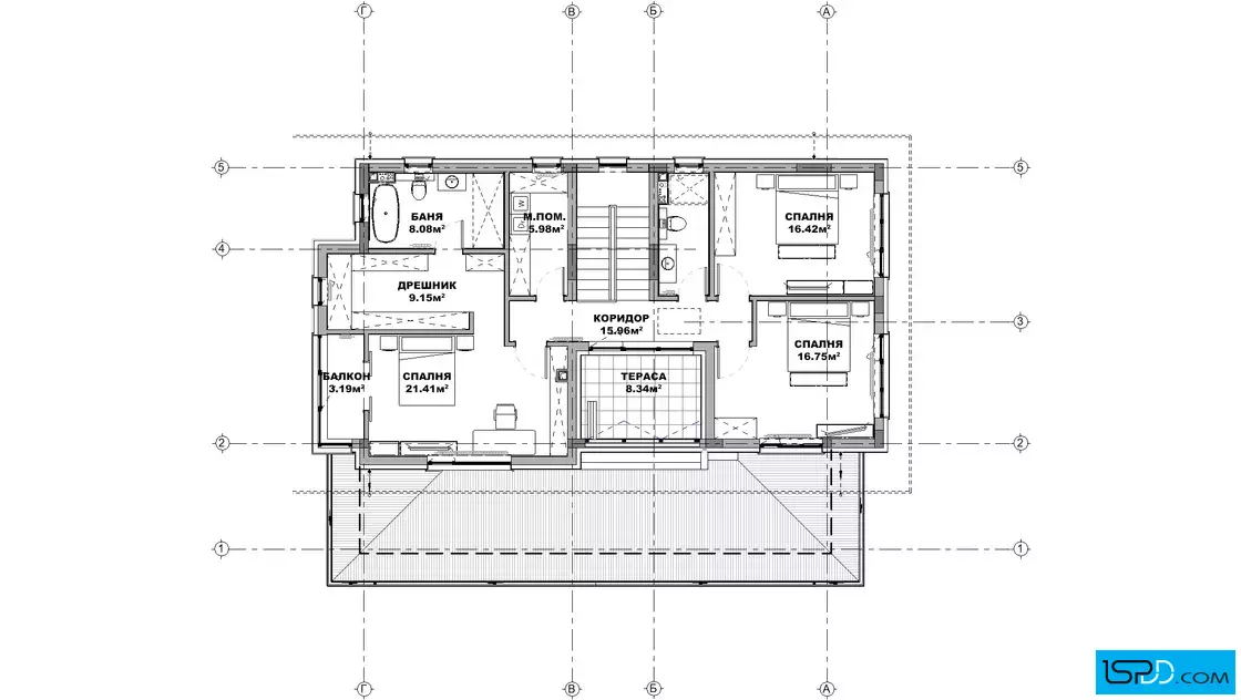
  • Спальни: 4
  • Балконы: 1
  • Гараж: 2
  • Бани/WC: 3

Информация за проекта:

Проект на къща в с. Герман проектирана от архитектурно студио Ай Ес Пи Дигитален Дизайн

858 15200

ЗАКУПУВАНЕ НА
ПРОЕКТ НА КЪЩА

Имате въпроси по проекта?
Ние сме тук да Ви помогнем!
Свържете се с нас сега!

(+359 887) 237 839
(+359 887) 213 099

Планове:

План на подземен етаж

План на подземен етаж

План на първи етаж

План на първи етаж

План на втори етаж

План на втори етаж

Ситуиране на къщата в парцела:

Жилищно строителство

Жилищно строителство

Вилно строителство

Вилно строителство

Коментари

Борислав
Борислав

Привет, интересувам се от обява с ИД 858 - на какъв етап е, и каква е цената на къщата. Също предлагате ли довършителни дейности.

Илиан Петков
Илиан Петков

Здравейте! Ние сме архитектурно студио и изготвяме проектната документация. Поздрави!