Проект на къща в с. Мрамор
Информация за проекта:
- Проект ID: 861
- Место нахождения: с. Мрамор, р-н Връбница, СО
- Фаза проекта: технический проект
- Цена: 11810 лв. (без ДДС)
- Этап строительства: Проект
- Тип крыши: Многоскатен
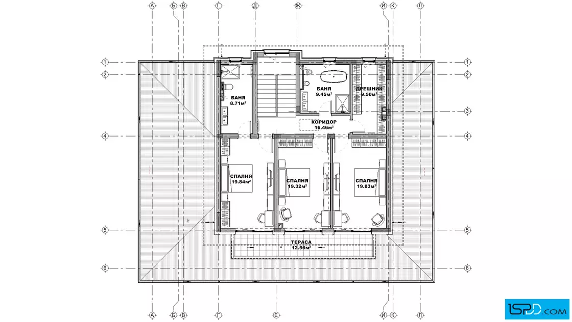
- Технически показатели
- Площадь зданий: 181 кв.м.
- Общая площадь: 326 кв.м.
- Габарити на сградата
- Широчина на сградата: 17.70 м.
- Дължина на сградата: 14.20 м.
- Функционалност
- Сутерен: Не
- Этажи: 2
- Комнаты: 5
- Спальни: 4
- Балконы: 1
- Веранда: 2
- Бани/WC: 4
Информация за проекта:
Проект на къща в с. Мрамор проектирана от архитектурно студио Ай Ес Пи Дигитален Дизайн
ЗАКУПУВАНЕ НА
ПРОЕКТ НА КЪЩА
Имате въпроси по проекта?
Ние сме тук да Ви помогнем!
Свържете се с нас сега!
(+359 887) 237 839
(+359 887) 213 099
























Коментари