Проект на къща в с. Нови Хан
Информация за проекта:
- Проект ID: 863
- Место нахождения: с. Нови хан, общ. Елин Пелин
- Фаза проекта: технический проект
- Цена: 6400 лв. (без ДДС)
- Этап строительства: строеж
- Тип крыши: Четырескатный
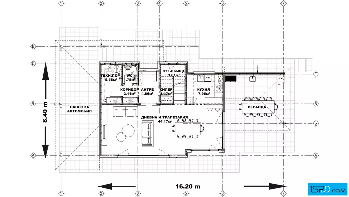
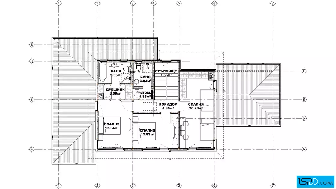
- Технически показатели
- Площадь зданий: 86 кв.м.
- Общая площадь: 173 кв.м.
- Габарити на сградата
- Широчина на сградата: 16.20 м.
- Дължина на сградата: 8.40 м.
- Функционалност
- Сутерен: Не
- Этажи: 2
- Комнаты: 4
- Спальни: 3
- Веранда: 1
- Гараж: 2
- Бани/WC: 3
Информация за проекта:
Проект на къща в с. Нови Хан проектирана от архитектурно студио Ай Ес Пи Дигитален Дизайн
ЗАКУПУВАНЕ НА
ПРОЕКТ НА КЪЩА
Имате въпроси по проекта?
Ние сме тук да Ви помогнем!
Свържете се с нас сега!
(+359 887) 237 839
(+359 887) 213 099
























Коментари