Проект на къща в с. Войнеговци
Информация за проекта:
- Проект ID: 864
- Место нахождения: с. Войнeговци, р-н Нови Искър, СО
- Фаза проекта: технический проект
- Цена: 9640 лв. (без ДДС)
- Этап строительства: строеж
- Тип крыши: Четырескатный
- Технически показатели
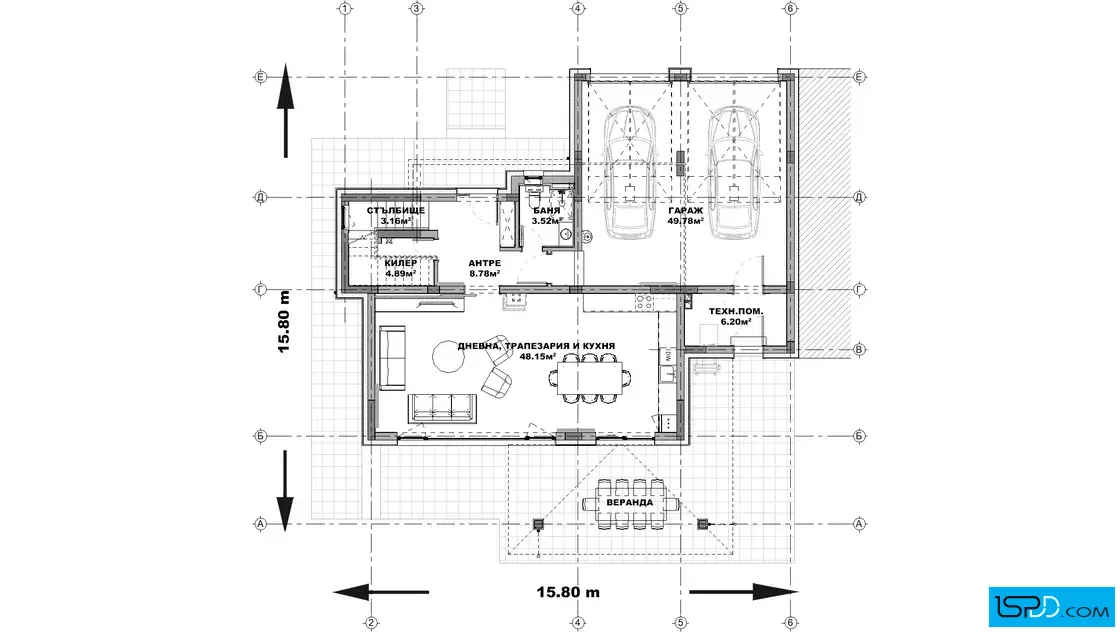
- Площадь зданий: 155 кв.м.
- Общая площадь: 264 кв.м.
- Габарити на сградата
- Широчина на сградата: 15.80 м.
- Дължина на сградата: 15.80 м.
- Функционалност
- Сутерен: Не
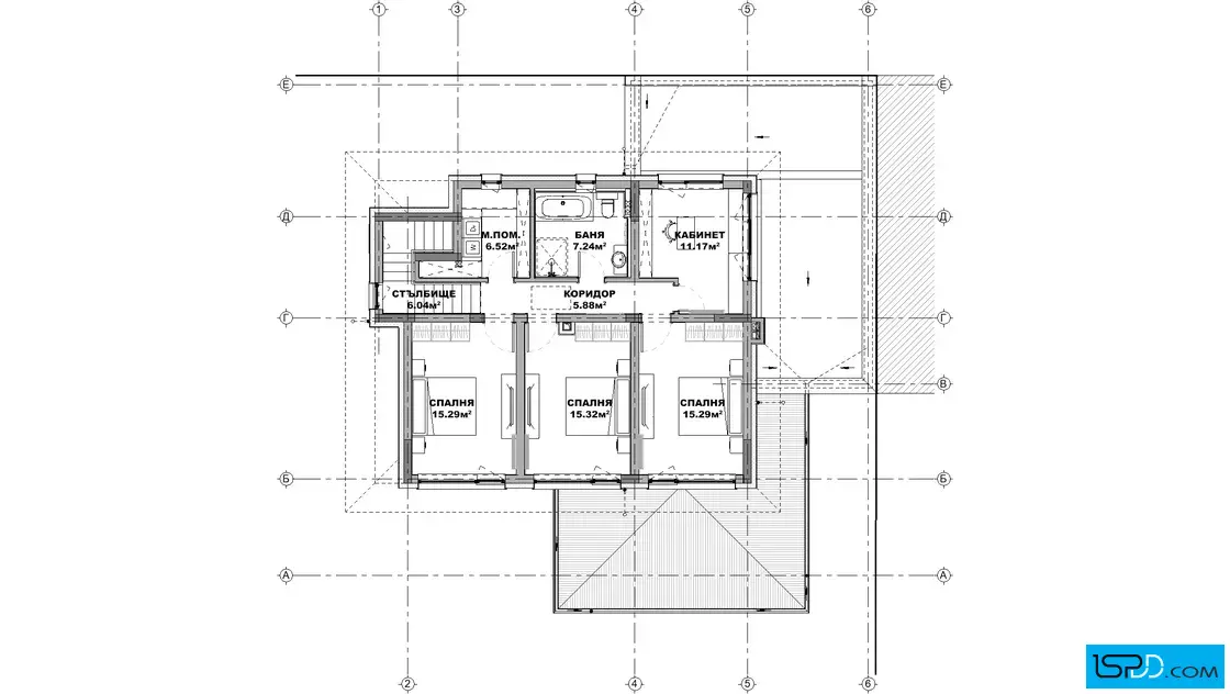
- Этажи: 2
- Комнаты: 5
- Спальни: 3
- Веранда: 1
- Гараж: 2
- Бани/WC: 2
Информация за проекта:
Проект на къща в с. Войнеговци проектирана от архитектурно студио Ай Ес Пи Дигитален Дизайн
ЗАКУПУВАНЕ НА
ПРОЕКТ НА КЪЩА
Имате въпроси по проекта?
Ние сме тук да Ви помогнем!
Свържете се с нас сега!
(+359 887) 237 839
(+359 887) 213 099
























Коментари