Проект на къща в гр. София
Информация за проекта:
- Проект ID: 866
- Место нахождения: кв. Горна баня, гр. София
- Фаза проекта: технический проект
- Цена: 12230 лв. (без ДДС)
- Этап строительства: В процессе стройки
- Тип крыши: Четырескатный
- Технически показатели
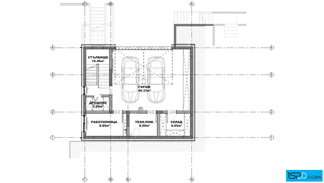
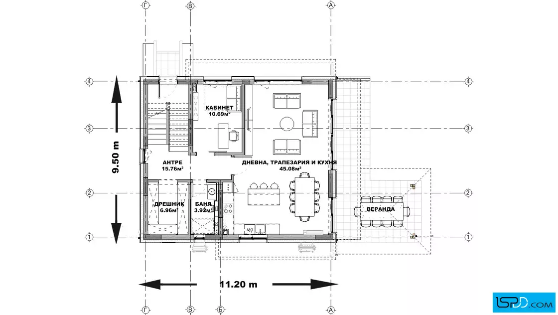
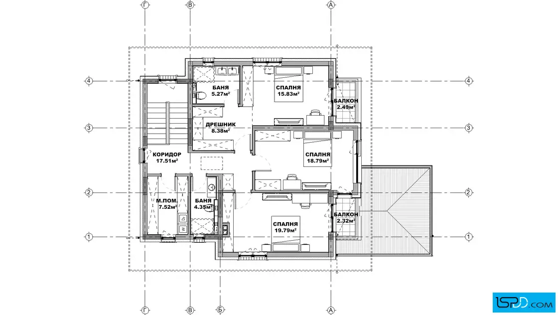
- Площадь зданий: 103 кв.м.
- Общая площадь: 338 кв.м.
- Габарити на сградата
- Широчина на сградата: 11.20 м.
- Дължина на сградата: 9.50 м.
- Функционалност
- Сутерен: Да
- Этажи: 2
- Комнаты: 5
- Спальни: 3
- Балконы: 2
- Веранда: 1
- Гараж: 2
- Бани/WC: 3
Информация за проекта:
Проект на къща в гр. София проектирана от архитектурно студио Ай Ес Пи Дигитален Дизайн
ЗАКУПУВАНЕ НА
ПРОЕКТ НА КЪЩА
Имате въпроси по проекта?
Ние сме тук да Ви помогнем!
Свържете се с нас сега!
(+359 887) 237 839
(+359 887) 213 099

























Коментари
Здравейте искам да ми кажете цена за целият проект и вие ли го внасяте в общината или аз.
Благодаря