Проект на къща в гр. София
Информация за проекта:
- Проект ID: 872
- Место нахождения: кв. Карпузица, гр. София
- Фаза проекта: идейный проект
- Цена: 17580 лв. (без ДДС)
- Этап строительства: Проект
- Тип крыши: Многоскатен
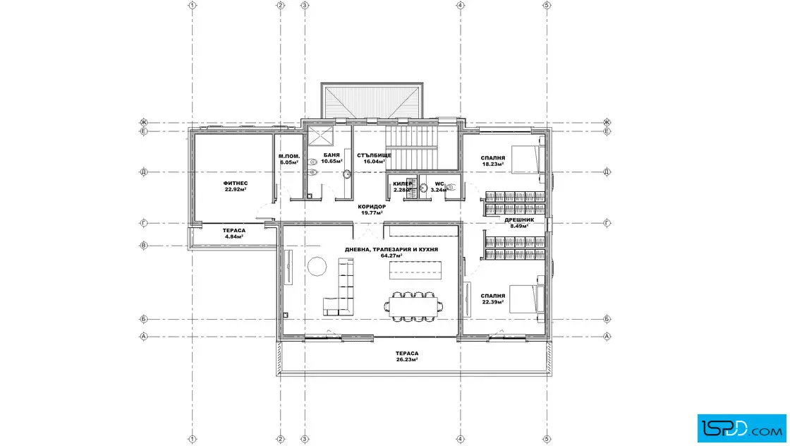
- Технически показатели
- Площадь зданий: 221 кв.м.
- Общая площадь: 491 кв.м.
- Габарити на сградата
- Широчина на сградата: 21.10 м.
- Дължина на сградата: 16.60 м.
- Функционалност
- Сутерен: Не
- Этажи: 2
- Комнаты: 7
- Спальни: 4
- Балконы: 2
- Веранда: 1
- Гараж: 2
- Бани/WC: 4
Информация за проекта:
Проект на къща в гр. София проектирана от архитектурно студио Ай Ес Пи Дигитален Дизайн
ЗАКУПУВАНЕ НА
ПРОЕКТ НА КЪЩА
Имате въпроси по проекта?
Ние сме тук да Ви помогнем!
Свържете се с нас сега!
(+359 887) 237 839
(+359 887) 213 099
























Коментари