Архитектурно студио
Работаем в любом масштабе и
в любой сфере
архитекти София
Создаем пространства в синхроне
с иx
окружением
Архитектурно студио
Мы объединяем естественный рельеф с
человеческой
находчивости
Архитектурно студио
Мы реализуем динамичные, инновационные и
устойчивые
проекты

Проект на къща в с. Чепинци

Информация за проекта:

  • Проект ID: 874
  • Место нахождения: с. Чепинци, р-н Нови Искър, гр. София
  • Фаза проекта: технический проект
  • Цена: 15690 лв. (без ДДС)
  • Этап строительства: Проект
  • Тип крыши: Плоской
  • Технически показатели
  • Площадь зданий: 97 кв.м.
  • Общая площадь: 437 кв.м.
  • Габарити на сградата
  • Широчина на сградата: 13.00 м.
  • Дължина на сградата: 7.70 м.
  • Функционалност
  • Сутерен: Да
  • Этажи: 3
  • Комнаты: 5
  • Спальни: 4
  • Балконы: 3
  • Бани/WC: 4

Информация за проекта:

Проект на къща в с. Чепинци проектирана от архитектурно студио Ай Ес Пи Дигитален Дизайн

874 15690

ЗАКУПУВАНЕ НА
ПРОЕКТ НА КЪЩА

Имате въпроси по проекта?
Ние сме тук да Ви помогнем!
Свържете се с нас сега!

(+359 887) 237 839
(+359 887) 213 099

Планове:

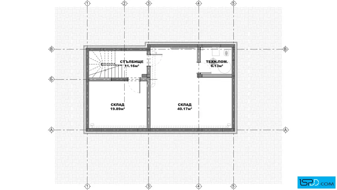
План на подземен етаж

План на подземен етаж

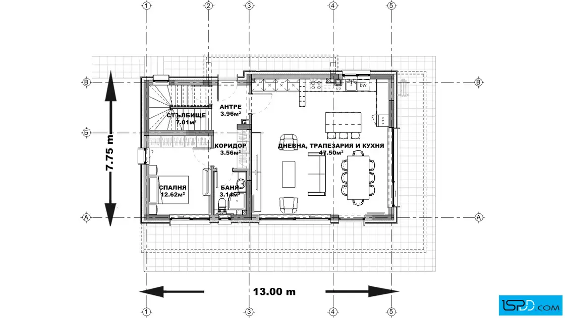
План на първи етаж

План на първи етаж

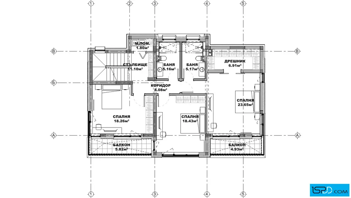
План на втори етаж

План на втори етаж

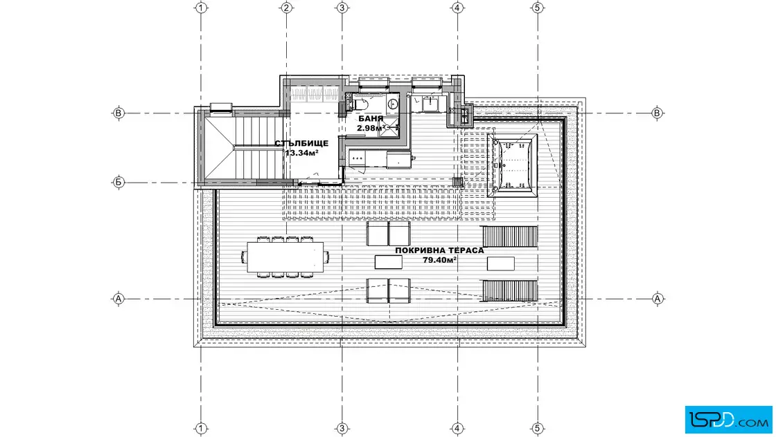
План на трети етаж

План на трети етаж

Ситуиране на къщата в парцела:

Жилищно строителство

Жилищно строителство

Вилно строителство

Вилно строителство

Коментари

Няма добавени коментари - пишете ни от формата по-долу