Проект на къща в с. Герман
Информация за проекта:
- Проект ID: 882
- Место нахождения: с. Герман, р-н Панчарево, гр. София
- Фаза проекта: технический проект
- Цена: 6400 лв. (без ДДС)
- Этап строительства: Проект
- Тип крыши: Двускатный
- Технически показатели
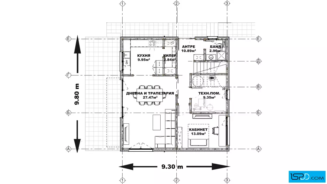
- Площадь зданий: 89 кв.м.
- Общая площадь: 185 кв.м.
- Габарити на сградата
- Широчина на сградата: 9.70 м.
- Дължина на сградата: 9.20 м.
- Функционалност
- Сутерен: Не
- Этажи: 2
- Комнаты: 5
- Спальни: 3
- Балконы: 1
- Бани/WC: 2
Информация за проекта:
Проект на къща в с. Герман проектирана от архитектурно студио Ай Ес Пи Дигитален Дизайн
ЗАКУПУВАНЕ НА
ПРОЕКТ НА КЪЩА
Имате въпроси по проекта?
Ние сме тук да Ви помогнем!
Свържете се с нас сега!
(+359 887) 237 839
(+359 887) 213 099
























Коментари
Здравейте за въпросната къща в село Герман 185кв каква е цената? Смисъл да речем че разполагам само с парцел, колко ще струва построяването във район на град Русе.