Проект на къща в с. Калище
Информация за проекта:
- Проект ID: 889
- Место нахождения: с. Калище, общ. Ковачевци
- Фаза проекта: технический проект
- Цена: 6400 лв. (без ДДС)
- Этап строительства: Проект
- Тип крыши: Плоской
- Технически показатели
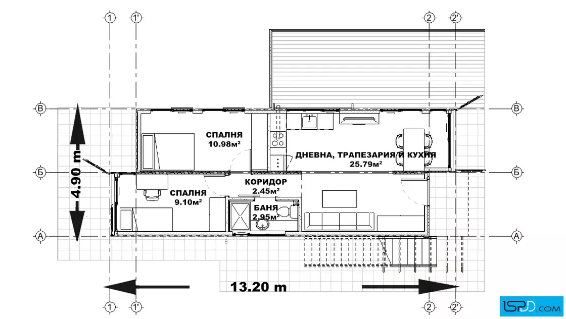
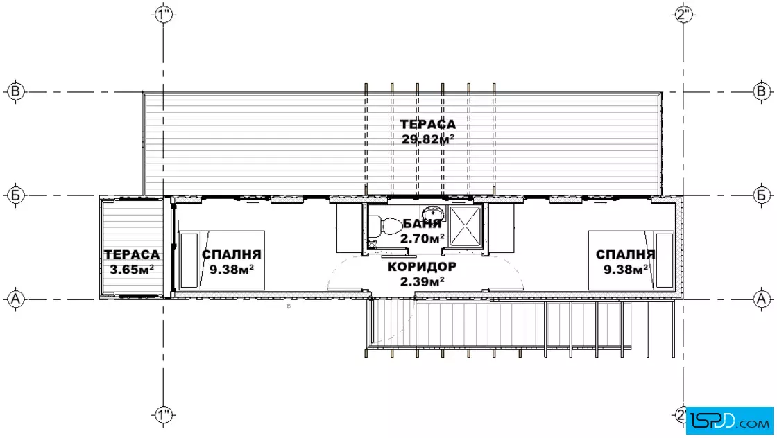
- Площадь зданий: 59 кв.м.
- Общая площадь: 123 кв.м.
- Габарити на сградата
- Широчина на сградата: 13.20 м.
- Дължина на сградата: 4.90 м.
- Функционалност
- Сутерен: Не
- Этажи: 2
- Комнаты: 5
- Спальни: 4
- Балконы: 2
- Бани/WC: 2
Информация за проекта:
Проект на контейнерна къща в с. Калище проектирана от архитектурно студио Ай Ес Пи Дигитален Дизайн
ЗАКУПУВАНЕ НА
ПРОЕКТ НА КЪЩА
Имате въпроси по проекта?
Ние сме тук да Ви помогнем!
Свържете се с нас сега!
(+359 887) 237 839
(+359 887) 213 099
























Коментари