Проект на къща в с. Лозенец
Информация за проекта:
- Проект ID: 890
- Место нахождения: с. Лозенец, общ. Царево
- Фаза проекта: технический проект
- Цена: 6400 лв. (без ДДС)
- Этап строительства: Проект
- Тип крыши: Плоской
- Технически показатели
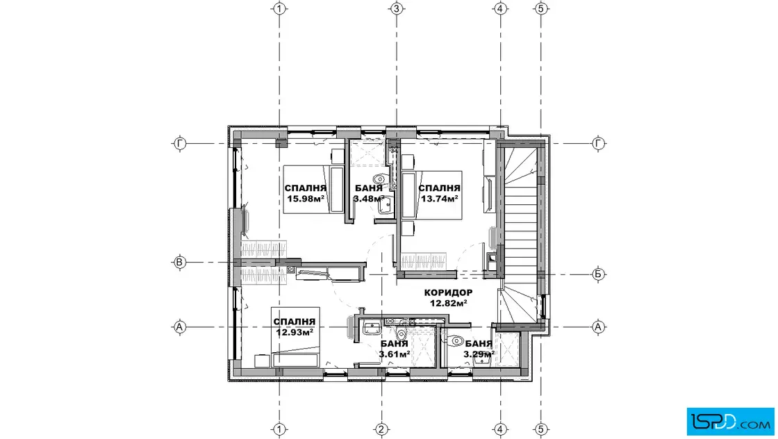
- Площадь зданий: 61 кв.м.
- Общая площадь: 148 кв.м.
- Габарити на сградата
- Широчина на сградата: 9.20 м.
- Дължина на сградата: 6.60 м.
- Функционалност
- Сутерен: Не
- Этажи: 2
- Комнаты: 4
- Спальни: 3
- Бани/WC: 4
Информация за проекта:
Проект на къща в с. Лозенец проектирана от архитектурно студио Ай Ес Пи Дигитален Дизайн
ЗАКУПУВАНЕ НА
ПРОЕКТ НА КЪЩА
Имате въпроси по проекта?
Ние сме тук да Ви помогнем!
Свържете се с нас сега!
(+359 887) 237 839
(+359 887) 213 099
























Коментари