Проект на къща в гр. Банско
Информация за проекта:
- Проект ID: 903
- Место нахождения: гр. Банско
- Фаза проекта: технический проект
- Цена: 8690 лв. (без ДДС)
- Этап строительства: Проект
- Тип крыши: Многоскатен
- Технически показатели
- Площадь зданий: 237 кв.м.
- Общая площадь: 237 кв.м.
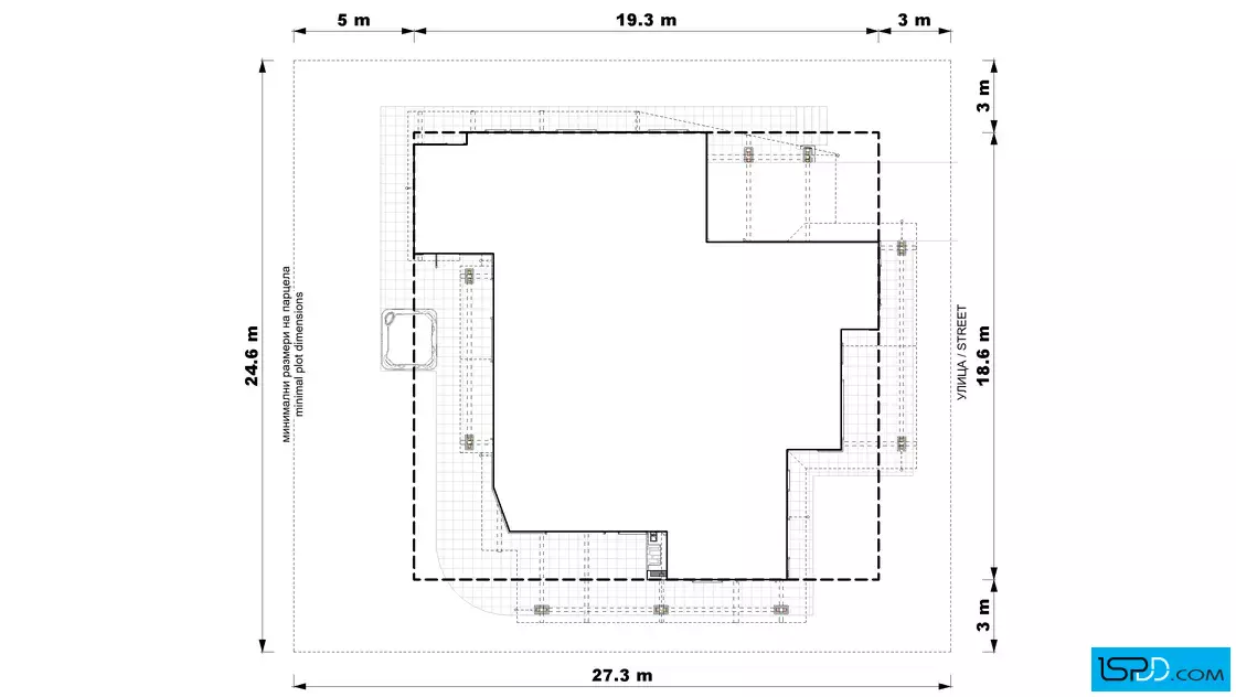
- Габарити на сградата
- Широчина на сградата: 19.30 м.
- Дължина на сградата: 18.60 м.
- Функционалност
- Сутерен: Не
- Этажи: 1
- Комнаты: 5
- Спальни: 4
- Веранда: 3
- Гараж: 1
- Бани/WC: 4
Информация за проекта:
Проект на къща в гр. Банско проектирана от архитектурно студио Ай Ес Пи Дигитален Дизайн
ЗАКУПУВАНЕ НА
ПРОЕКТ НА КЪЩА
Имате въпроси по проекта?
Ние сме тук да Ви помогнем!
Свържете се с нас сега!
(+359 887) 237 839
(+359 887) 213 099























Коментари