Архитектурно студио
Работаем в любом масштабе и
в любой сфере
архитекти София
Создаем пространства в синхроне
с иx
окружением
Архитектурно студио
Мы объединяем естественный рельеф с
человеческой
находчивости
Архитектурно студио
Мы реализуем динамичные, инновационные и
устойчивые
проекты

Проект на къща в гр. Самоков

Информация за проекта:

  • Проект ID: 922
  • Место нахождения: гр. Самоков, общ. Самоков, обл. София
  • Фаза проекта: технический проект
  • Этап строительства: Проект
  • Тип крыши: Четырескатный
  • Технически показатели
  • Площадь зданий: 135 кв.м.
  • Общая площадь: 341 кв.м.
  • Габарити на сградата
  • Широчина на сградата: 13.50 м.
  • Дължина на сградата: 13.20 м.
  • Функционалност
  • Сутерен: Да
  • Этажи: 2
  • Комнаты: 5
  • Спальни: 3
  • Балконы: 1
  • Гараж: 1
  • Бани/WC: 3

Информация за проекта:

Проект на къща в гр. Самоков проектирана от архитектурно студио Ай Ес Пи Дигитален Дизайн

922 N/A

Планове:

План на подземен етаж

План на подземен етаж

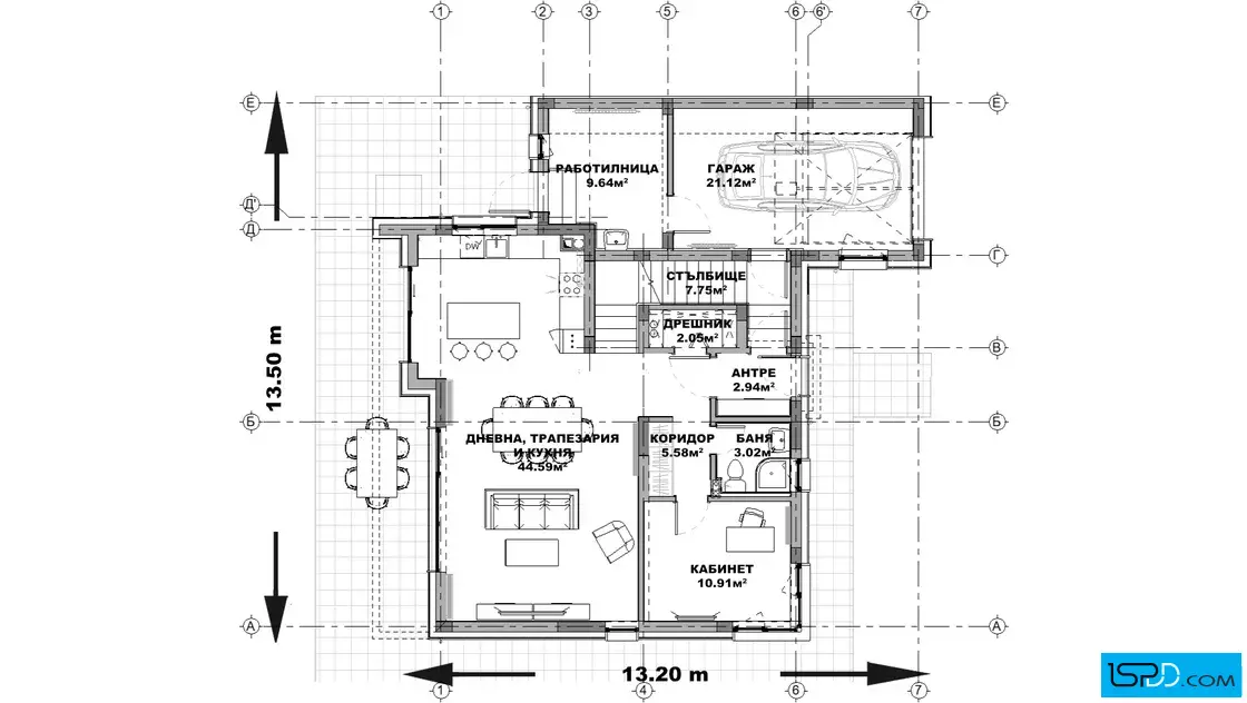
План на първи етаж

План на първи етаж

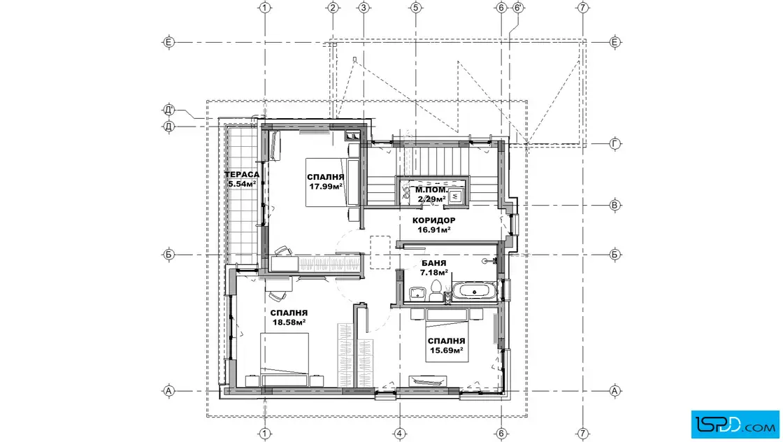
План на втори етаж

План на втори етаж

Ситуиране на къщата в парцела:

Жилищно строителство

Жилищно строителство

Вилно строителство

Вилно строителство

Коментари

Няма добавени коментари - пишете ни от формата по-долу