Архитектурно студио
Работаем в любом масштабе и
в любой сфере
архитекти София
Создаем пространства в синхроне
с иx
окружением
Архитектурно студио
Мы объединяем естественный рельеф с
человеческой
находчивости
Архитектурно студио
Мы реализуем динамичные, инновационные и
устойчивые
проекты

Проект на къща в гр. Банкя

Информация за проекта:

  • Проект ID: 923
  • Место нахождения: гр. Банкя
  • Фаза проекта: технический проект
  • Этап строительства: Проект
  • Тип крыши: Многоскатен
  • Технически показатели
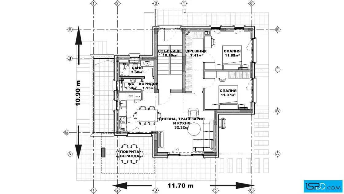
  • Площадь зданий: 103 кв.м.
  • Общая площадь: 448 кв.м.
  • Габарити на сградата
  • Широчина на сградата: 11.70 м.
  • Дължина на сградата: 10.90 м.
  • Функционалност
  • Сутерен: Да
  • Этажи: 3
  • Комнаты: 9
  • Спальни: 4
  • Балконы: 2
  • Веранда: 1
  • Гараж: 1
  • Бани/WC: 6

Информация за проекта:

Проект на къща в р-н Банкя проектирана от архитектурно студио Ай Ес Пи Дигитален Дизайн

923 N/A

Планове:

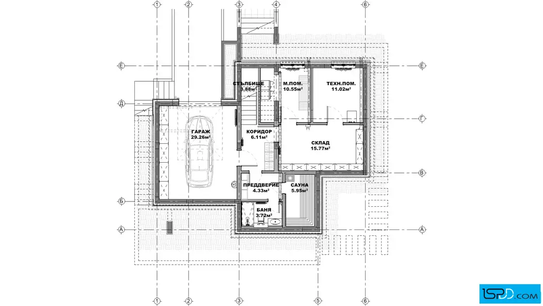
План на подземен етаж

План на подземен етаж

План на първи етаж

План на първи етаж

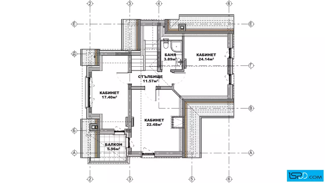
План на втори етаж

План на втори етаж

План на трети етаж

План на трети етаж

Ситуиране на къщата в парцела:

Жилищно строителство

Жилищно строителство

Вилно строителство

Вилно строителство

Коментари

Няма добавени коментари - пишете ни от формата по-долу