Проект на къща в гр. София
Информация за проекта:
- Проект ID: 924
- Место нахождения: гр. София
- Фаза проекта: технический проект
- Этап строительства: строеж
- Тип крыши: Плоской
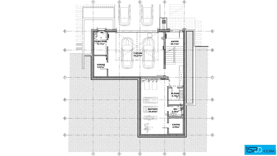
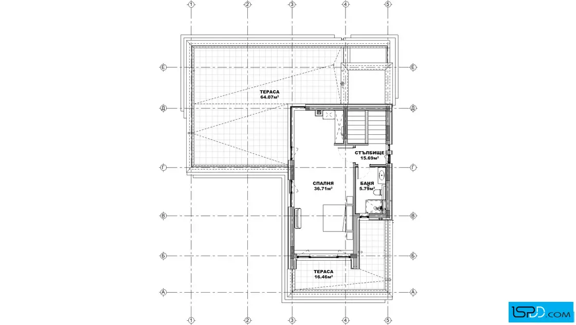
- Технически показатели
- Площадь зданий: 158 кв.м.
- Общая площадь: 659 кв.м.
- Габарити на сградата
- Широчина на сградата: 15.60 м.
- Дължина на сградата: 13.70 м.
- Функционалност
- Сутерен: Да
- Этажи: 3
- Комнаты: 6
- Спальни: 4
- Балконы: 2
- Гараж: 2
- Бани/WC: 6
Информация за проекта:
Проект на къща в гр. София проектирана от архитектурно студио Ай Ес Пи Дигитален Дизайн


























Коментари