Проект на къща в с. Вакарел
Информация за проекта:
- Проект ID: 926
- Место нахождения: с. Вакарел, общ. Ихтиман
- Фаза проекта: технический проект
- Этап строительства: строеж
- Тип крыши: Четырескатный
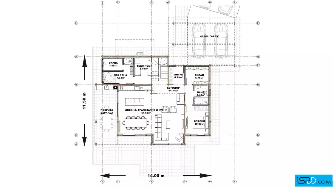
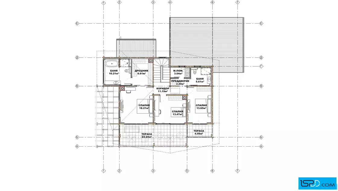
- Технически показатели
- Площадь зданий: 127 кв.м.
- Общая площадь: 258 кв.м.
- Габарити на сградата
- Широчина на сградата: 14.00 м.
- Дължина на сградата: 11.50 м.
- Функционалност
- Сутерен: Не
- Этажи: 2
- Комнаты: 5
- Спальни: 4
- Балконы: 2
- Веранда: 1
- Бани/WC: 3
Информация за проекта:
Проект на къща в с. Вакарел проектирана от архитектурно студио Ай Ес Пи Дигитален Дизайн
























Коментари