Проект на къща в с. Вакарел
Информация за проекта:
- Проект ID: 927
- Место нахождения: с. Вакарел, общ. Ихтиман
- Фаза проекта: технический проект
- Этап строительства: строеж
- Тип крыши: Двускатный
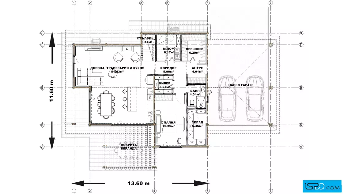
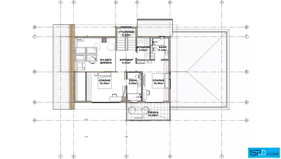
- Технически показатели
- Площадь зданий: 122 кв.м.
- Общая площадь: 204 кв.м.
- Габарити на сградата
- Широчина на сградата: 13.60 м.
- Дължина на сградата: 11.60 м.
- Функционалност
- Сутерен: Не
- Этажи: 2
- Комнаты: 4
- Спальни: 3
- Балконы: 1
- Веранда: 2
- Бани/WC: 3
Информация за проекта:
Проект на къща в с. Вакарел проектирана от архитектурно студио Ай Ес Пи Дигитален Дизайн
























Коментари