Проект на къща в с. Пролеша
Информация за проекта:
- Проект ID: 930
- Место нахождения: с. Пролеша, общ. Божурище
- Фаза проекта: технический проект
- Этап строительства: Проект
- Тип крыши: Многоскатен
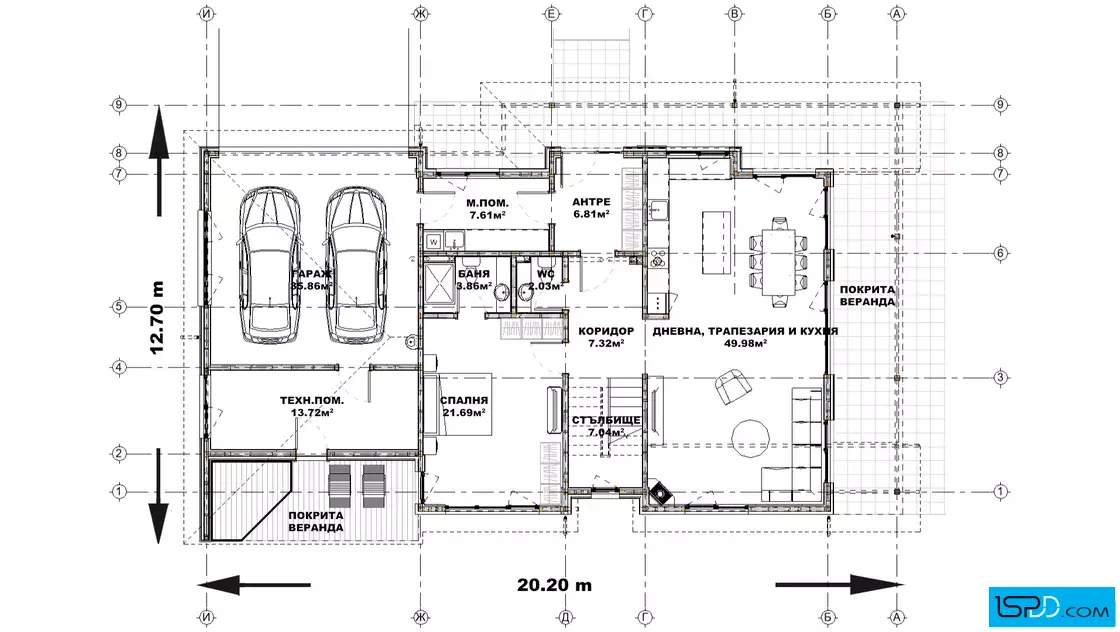
- Технически показатели
- Площадь зданий: 179 кв.м.
- Общая площадь: 298 кв.м.
- Габарити на сградата
- Широчина на сградата: 20.20 м.
- Дължина на сградата: 12.70 м.
- Функционалност
- Сутерен: Не
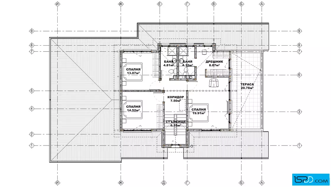
- Этажи: 2
- Комнаты: 5
- Спальни: 4
- Балконы: 1
- Веранда: 2
- Гараж: 2
- Бани/WC: 4
Информация за проекта:
Проектът на къща в с. Пролеша е двуетажен дом с дървена скелетна конструкция, който поставя акцент върху връзката между вътрешните пространства и двора. Най-ярко това се усеща чрез широката покрита веранда на първия етаж – място, което естествено разширява дневната зона навън и създава идеален кът за сутрешно кафе, семейни вечери и спокойна рекреация на открито. Верандата оформя плавна граница между дома и градината, превръщайки двора в ежедневна част от начина на живот.
Фасадата комбинира минерална мазилка, каменна облицовка и фиброцимент с имитация на дърво, създавайки топъл и съвременен образ. На първия етаж светлата дневна, кухнята и трапезарията се отварят към външните пространства, което носи усещане за свобода и простор. На втория етаж се разполагат четири спокойни спални, допълнени от един балкон – уютен, защитен кът за почивка, който предлага място за тишина и наслада на гледката, далеч от любопитни погледи.
Топлоизолацията от каменна вата и качествената дограма с трислоен стъклопакет правят дома комфортен през всеки сезон. Външните пространства са истинско продължение на интериора и определят характера на къщата като място за живот близо до природата.
























Коментари