Проект на къща в с. Гурмазово
Информация за проекта:
- Проект ID: 931
- Место нахождения: с. Гурмазово, общ. Божурище
- Фаза проекта: технический проект
- Этап строительства: строеж
- Тип крыши: Многоскатен
- Технически показатели
- Площадь зданий: 105 кв.м.
- Общая площадь: 221 кв.м.
- Габарити на сградата
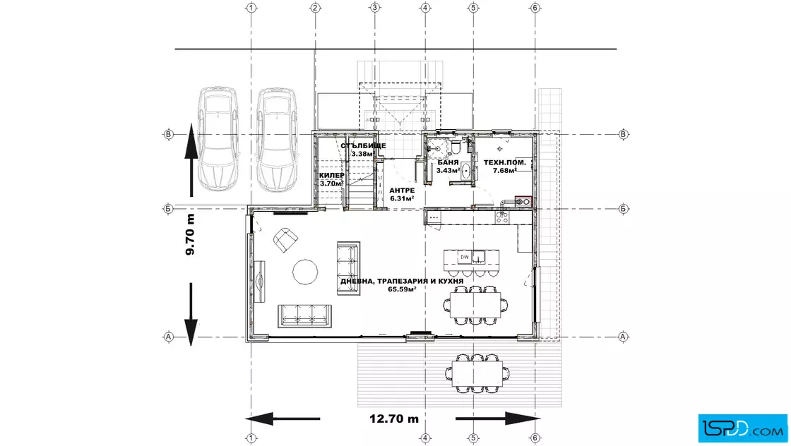
- Широчина на сградата: 12.70 м.
- Дължина на сградата: 9.70 м.
- Функционалност
- Сутерен: Не
- Этажи: 2
- Комнаты: 4
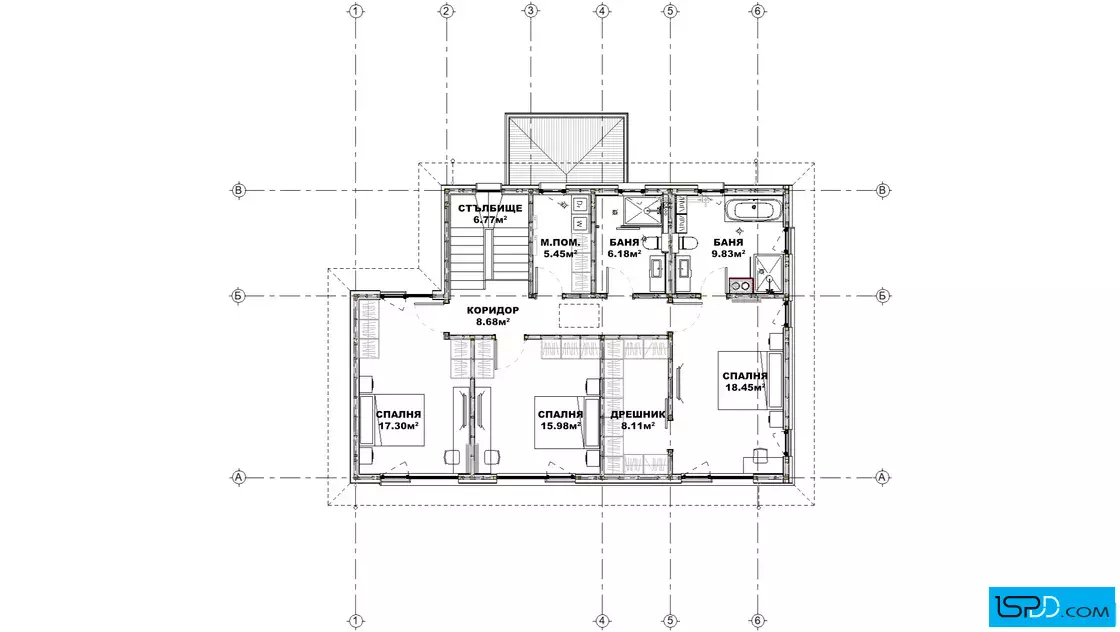
- Спальни: 3
- Бани/WC: 3
Информация за проекта:
Това е двуетажна семейна къща с компактна форма и ясна архитектурна линия, замислена за ежедневие с баланс между уют и функционалност.
- Конструкцията е дървена скелетна, с ефективна външна топлоизолация от каменна вата – решение за комфорт през всички сезони.
- Фасадата комбинира минерална мазилка и каменен цокъл с дискретни декоративни елементи, а покривът е многоскатен с керамични керемиди, което придава спокойна, класическа визия.
- Дограмата е PVC или алуминиева, с двоен или троен стъклопакет за повече светлина и енергийна ефективност.
- На първия етаж е предвидена просторна дневна зона – място за събиране на семейството и приятели, с удобна връзка към входа и сервизните помещения.
- На втория етаж са разположени трите спални и баните – уединено пространство за спокойна нощ и личен ритъм.
- Обитаемата площ е добре организирана: общо 4 стаи, 3 спални и 3 бани/WC.
Покритият вход посреща с мек преход между вън и вътре. Балкони и тераси не са предвидени, което концентрира живота към двора и приземното ниво. Ситуирането е подходящо както за жилищно, така и за вилно строителство, което дава свобода на инвеститорите и семействата да изберат най-добрия сценарий за парцела си. Домът обещава светли пространства, тишина за отдих и естествен ритъм на семейния ден – дом, който носи спокойствие и свобода.
























Коментари