Архитектурно студио
Работаем в любом масштабе и
в любой сфере
архитекти София
Создаем пространства в синхроне
с иx
окружением
Архитектурно студио
Мы объединяем естественный рельеф с
человеческой
находчивости
Архитектурно студио
Мы реализуем динамичные, инновационные и
устойчивые
проекты

Проект на къща в с. Ваклино

Информация за проекта:

  • Проект ID: 933
  • Место нахождения: с. Ваклино, общ. Шабла
  • Фаза проекта: технический проект
  • Этап строительства: Проект
  • Тип крыши: Двускатный
  • Технически показатели
  • Площадь зданий: 75 кв.м.
  • Общая площадь: 106 кв.м.
  • Габарити на сградата
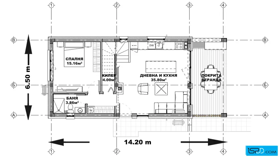
  • Широчина на сградата: 14.20 м.
  • Дължина на сградата: 6.50 м.
  • Функционалност
  • Сутерен: Не
  • Этажи: 2
  • Комнаты: 3
  • Спальни: 2
  • Веранда: 1
  • Бани/WC: 2

Информация за проекта:

Къщата в с. Ваклино е замислена като компактно и функционално жилище с ясно разделение между дневна и нощна зона. Проектът е на два надземни етажа, с 3 стаи, 2 спални и 2 бани/WC – идеален за младо семейство, търсещо уют и подреден живот.

На първия етаж се развива просторна дневна зона с място за общуване и ежедневни дейности, допълнена от обслужващи помещения за удобство в рутината. Вторият етаж оформя спокойна нощна зона с две спални за уединение и възстановяване. Покритата веранда свързва дома с двора и създава естествено продължение на дневния живот навън.

Архитектурната форма е ясна и спокойна, завършена с двускатен покрив – класика, която стои уверено в средата на селото. Дограмата е предвидена PVC или алуминий с двоен/троен стъклопакет, а топлоизолацията – външна (EPS или каменна вата) за стабилен вътрешен климат през всички сезони. Конструкцията е монолитна стоманобетонна с тухлена зидария – надеждна основа за дълъг живот на дома. Тези технически решения работят в полза на усещането за комфорт, тишина и ниски енергийни разходи.

Връзката с външното пространство се усеща още от покрития вход: място за сутрешно кафе, следобеден отдих и срещи с приятели на чист въздух. Липсата на тераси подчертава фокуса върху двора и приземния живот, където природата е на една крачка. Компактните размери правят къщата подходяща за различни парцели – както за жилищно, така и за вилно застрояване. В крайна сметка това е дом със спокойна естетика и смислено разпределение, който подкрепя прост, естествен и радостен начин на живот.

933 N/A

Планове:

План на първи етаж

План на първи етаж

План на втори етаж

План на втори етаж

Ситуиране на къщата в парцела:

Жилищно строителство

Жилищно строителство

Вилно строителство

Вилно строителство

Коментари

Няма добавени коментари - пишете ни от формата по-долу