Архитектурно студио
Работаем в любом масштабе и
в любой сфере
архитекти София
Создаем пространства в синхроне
с иx
окружением
Архитектурно студио
Мы объединяем естественный рельеф с
человеческой
находчивости
Архитектурно студио
Мы реализуем динамичные, инновационные и
устойчивые
проекты

Проект на къща в гр. София

Информация за проекта:

  • Проект ID: 934
  • Место нахождения: м. Смардана, гр. София
  • Фаза проекта: технический проект
  • Этап строительства: Проект
  • Тип крыши: Многоскатен
  • Технически показатели
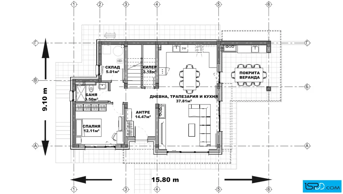
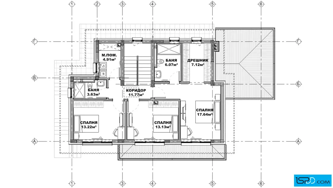
  • Площадь зданий: 97 кв.м.
  • Общая площадь: 197 кв.м.
  • Габарити на сградата
  • Широчина на сградата: 15.80 м.
  • Дължина на сградата: 9.10 м.
  • Функционалност
  • Сутерен: Не
  • Этажи: 2
  • Комнаты: 5
  • Спальни: 4
  • Веранда: 1
  • Бани/WC: 3

Информация за проекта:

Домът е замислен като компактна, двуетажна къща с ясна, подредена композиция и уютна визия. Формата е спокойна и съвременна, с многоскатен покрив, който придава класически силует. Материалната палитра включва минерална мазилка с акценти от каменна и дървена облицовка – топла комбинация, която стои естествено в средата. Дограмата е PVC или алуминиева с двоен/троен стъклопакет за повече светлина и комфорт през всички сезони.

Разпределението е планирано за съвременен семеен ритъм: общо 5 стаи, от които 4 са спални, а санитарните помещения са три — достатъчно за динамичното ежедневие на семейството. Първият етаж предлага просторна дневна зона с естествена връзка към двора, където животът се изнася навън през топлите дни. На втория етаж спалните осигуряват уединение и тишина, като организацията е компактна и лесна за поддръжка. Покритата веранда създава преходна, защитена зона – идеална за сутрешно кафе или следобеден отдих.

Къщата е монолитна стоманобетонна, с тухлени ограждащи стени и външна топлоизолация (EPS или каменна вата) – основа за стабилност и енергийна ефективност. Покривът е с керамични керемиди – надежден, дълготраен и хармоничен с цялостната визия. Липсата на балкони фокусира обитаването към земята и градината, а отсъствието на подземен етаж прави проекта по-достъпен за изпълнение и поддръжка.

Това е дом със спокоен характер, чиста линия и естествени материали, който кани светлината и природата близо до ежедневието. Място, което предлага уют, уединение и спокойствие на живеене.

934 N/A

Планове:

План на първи етаж

План на първи етаж

План на втори етаж

План на втори етаж

Ситуиране на къщата в парцела:

Жилищно строителство

Жилищно строителство

Вилно строителство

Вилно строителство

Коментари

Няма добавени коментари - пишете ни от формата по-долу