Архитектурно студио
Работаем в любом масштабе и
в любой сфере
архитекти София
Создаем пространства в синхроне
с иx
окружением
Архитектурно студио
Мы объединяем естественный рельеф с
человеческой
находчивости
Архитектурно студио
Мы реализуем динамичные, инновационные и
устойчивые
проекты

Проект на къща в с. Волуяк

Информация за проекта:

  • Проект ID: 937
  • Место нахождения: с. Волуяк, общ. София
  • Фаза проекта: технический проект
  • Этап строительства: Проект
  • Тип крыши: Двускатный
  • Технически показатели
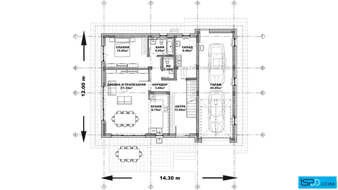
  • Площадь зданий: 160 кв.м.
  • Общая площадь: 272 кв.м.
  • Габарити на сградата
  • Широчина на сградата: 14.30 м.
  • Дължина на сградата: 12.00 м.
  • Функционалност
  • Сутерен: Не
  • Этажи: 2
  • Комнаты: 6
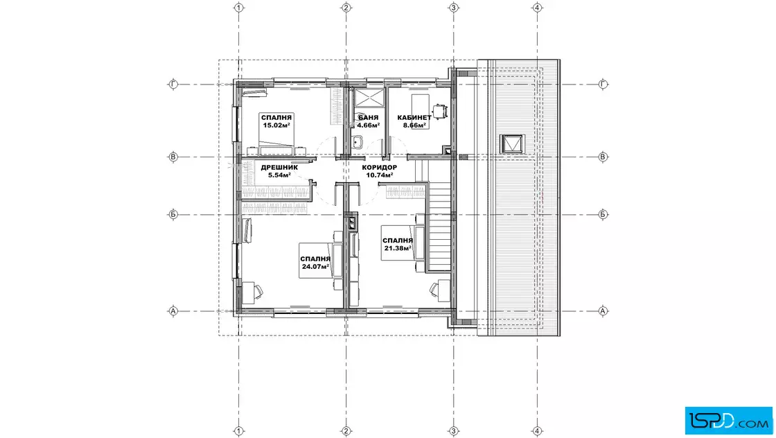
  • Спальни: 4
  • Гараж: 2
  • Бани/WC: 3

Информация за проекта:

Съвременна двуетажна къща с ясна, компактна форма и двускатен покрив, проектирана да носи уют и спокойствие на семейството. Общата площ е около 272 кв.м с застроена площ 160 кв.м – мащаб, който позволява простор без излишни пространства.

  • Фасадата съчетава минерална мазилка и каменна облицовка с изразен каменен цокъл и декоративни елементи за топъл, естествен образ.
  • Конструкцията е монолитна стоманобетонна с тухлена зидария, а външната топлоизолация (EPS или каменна вата) и качествената дограма с двоен/троен стъклопакет подсилват комфорта през всички сезони.
  • Функционално домът предлага 6 стаи, от които 4 са спални – практична рамка за активен семеен живот и лична зона за отдих.
  • Дневната зона е замислена да бъде светла и просторна – място за общи вечери и споделени моменти.
  • Двете нива позволяват ясно разграничаване между общи и частни функции, така че шумът да остава долу, а спокойствието – горе.
  • Три бани осигуряват удобство в динамиката на ежедневието.

Сградата е проектирана за парцел в с. Волуяк, общ. София, като ситуирането в имота подпомага естественото ползване на двора. Предвидено е място за два автомобила – допълнителна свобода при организацията на домакинството. Чистата линия на обема и покривът с керамични керемиди придават класическо усещане, което остава актуално във времето. Материалите на фасадата са гъвкави и могат да бъдат адаптирани според вкуса на собствениците, запазвайки естетичния образ.

Това е дом, който обединява функционалност, топлина и дискретен престиж – място за спокойствие и свобода.

937 N/A

Планове:

План на първи етаж

План на първи етаж

План на втори етаж

План на втори етаж

Ситуиране на къщата в парцела:

Жилищно строителство

Жилищно строителство

Вилно строителство

Вилно строителство

Коментари

Няма добавени коментари - пишете ни от формата по-долу