Проект на къща в гр. Хисаря
Информация за проекта:
- Проект ID: 938
- Место нахождения: гр. Хисаря
- Фаза проекта: технический проект
- Этап строительства: Проект
- Тип крыши: Многоскатен
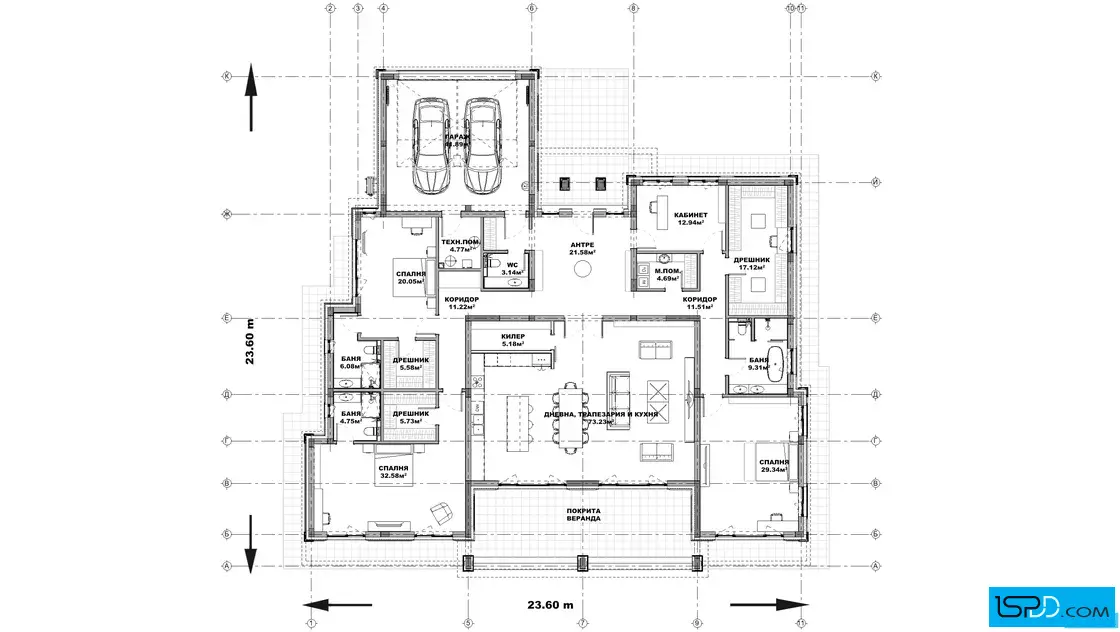
- Технически показатели
- Площадь зданий: 385 кв.м.
- Общая площадь: 385 кв.м.
- Габарити на сградата
- Широчина на сградата: 23.60 м.
- Дължина на сградата: 23.60 м.
- Функционалност
- Сутерен: Не
- Этажи: 1
- Комнаты: 5
- Спальни: 3
- Веранда: 1
- Гараж: 2
- Бани/WC: 4
Информация за проекта:
Едноетажен дом с ясно изразена компактна форма и многоскатен покрив, проектиран за спокойния ритъм на гр. Хисаря.
- Планът включва 5 стаи с три комфортни спални и общо четири бани/WC – функционалност, която подкрепя динамиката на модерното семейство.
- Просторната дневна зона е планирана като сърцето на къщата, с логична връзка към останалите помещения за плавно ежедневие.
- Входът е подчертан с покрито пространство/веранда – естествен преход между интериор и двор. Външни балкони и тераси не са предвидени, което насочва вниманието към уютната приземна веранда и дворното обитаване.
- За автомобили е предвиден гараж за 2 коли, осигуряващ удобство при ежедневна употреба.
Конструкцията е монолитна стоманобетонна с тухлена зидария – стабилна основа за дълъг живот на дома. Фасадата е с минерална мазилка и декоративни елементи, а металният покрив подчертава чистата линия на обема. Дограмата е PVC или алуминий с двоен или троен стъклопакет за повече светлина и тишина. Външната топлоизолация (EPS или каменна вата) допринася за комфорт през всички сезони.
Всичко е на едно ниво – повече близост, повече споделено време, повече свобода в движението. Дом, който събира семейния ритъм на едно място и носи спокойствие и свобода.























Коментари