Архитектурно студио
Работаем в любом масштабе и
в любой сфере
архитекти София
Создаем пространства в синхроне
с иx
окружением
Архитектурно студио
Мы объединяем естественный рельеф с
человеческой
находчивости
Архитектурно студио
Мы реализуем динамичные, инновационные и
устойчивые
проекты

Проект на къща в гр. София

Информация за проекта:

  • Проект ID: 939
  • Место нахождения: м. Кръстова вада, гр. София
  • Фаза проекта: технический проект
  • Этап строительства: строеж
  • Тип крыши: Двускатный
  • Технически показатели
  • Площадь зданий: 103 кв.м.
  • Общая площадь: 236 кв.м.
  • Габарити на сградата
  • Широчина на сградата: 15.30 м.
  • Дължина на сградата: 6.90 м.
  • Функционалност
  • Сутерен: Не
  • Этажи: 3
  • Комнаты: 5
  • Спальни: 2
  • Балконы: 2
  • Гараж: 2
  • Бани/WC: 3

Информация за проекта:

Този проект представя съвременна градска къща, създадена специално за тесни парцели в крайните квартали на София. Архитектурата ѝ е издължена и компактна, като обемът следва строгите граници на имота, без да губи усещането за простор и светлина. Фасадата комбинира минерална мазилка и метални листи, които придават на сградата модерен и изчистен облик. Покривът е двускатен с метално покритие, което подчертава динамиката на формата и устойчивия характер на къщата.

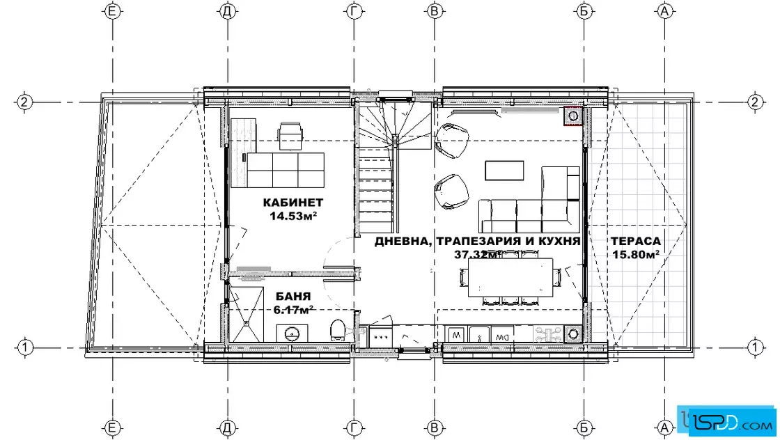
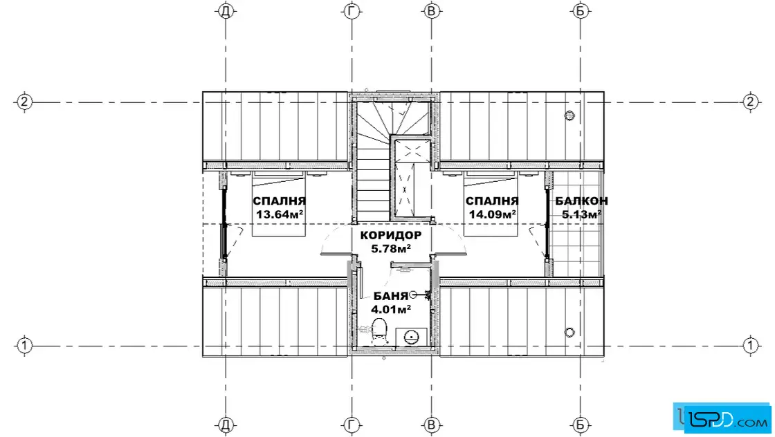
На приземния етаж са разположени двоен гараж и функционална входна зона с компактна дневна, подходяща за практичен градски живот. Основната дневна зона е издигната на втория етаж, където пространството се отваря към голяма тераса — идеално място за отдих и градски изгледи. Третият етаж е запазен за две уютни спални и баня, осигуряващи уединение и спокойствие за обитателите.

Въпреки ограничената си ширина, интериорът е проектиран така, че естествената светлина прониква във всяко помещение. Външната тераса и вертикалното разпределение на функциите придават усещане за простор и независимост. Конструкцията е монолитна със стоманобетон и метална рамка, което гарантира дълготрайност и стабилност.

Тази къща е пример за интелигентно проектиране в градска среда – дом, който предлага уют и функционалност.

939 N/A

Планове:

План на първи етаж

План на първи етаж

План на втори етаж

План на втори етаж

План на трети етаж

План на трети етаж

Ситуиране на къщата в парцела:

Жилищно строителство

Жилищно строителство

Вилно строителство

Вилно строителство

Коментари

Няма добавени коментари - пишете ни от формата по-долу