Проект на къща в гр. София
Информация за проекта:
- Проект ID: 940
- Место нахождения: в.з. Горна Баня, гр. София
- Фаза проекта: технический проект
- Этап строительства: строеж
- Тип крыши: Многоскатен
- Технически показатели
- Площадь зданий: 89 кв.м.
- Общая площадь: 251 кв.м.
- Габарити на сградата
- Широчина на сградата: 13.30 м.
- Дължина на сградата: 7.70 м.
- Функционалност
- Сутерен: Не
- Этажи: 3
- Комнаты: 5
- Спальни: 3
- Балконы: 1
- Бани/WC: 4
Информация за проекта:
Този проект представя модерна триетажна градска къща с изчистена форма и елегантна фасада, съчетаваща минерална мазилка, HPL панели и облицовка от гранитогрес. Архитектурата ѝ следва динамичен градски ритъм – компактен обем, рационално разпределение и висока функционалност.
Първият етаж е изцяло посветен на дневната зона – просторна и светла, с пряка връзка към външното пространство и усещане за уединение сред града. Тук обитателите могат да споделят време заедно, като плавният преход между кухня, трапезария и дневна създава уют и лекота на движение.
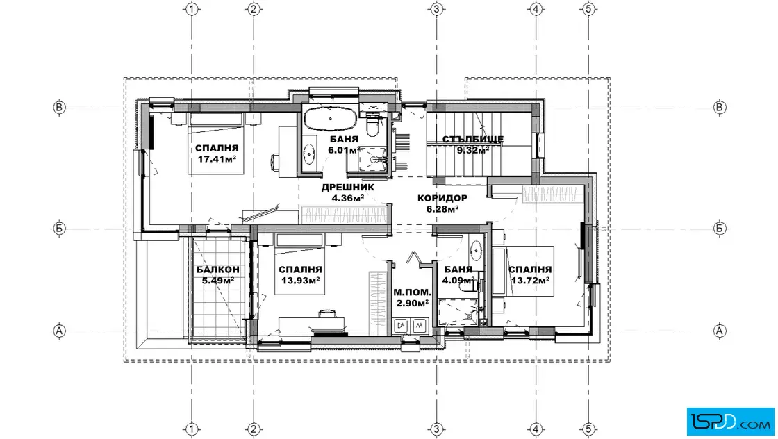
На втория етаж са разположени спалните – комфортни, добре осветени помещения, които предлагат спокойствие и личностно пространство.
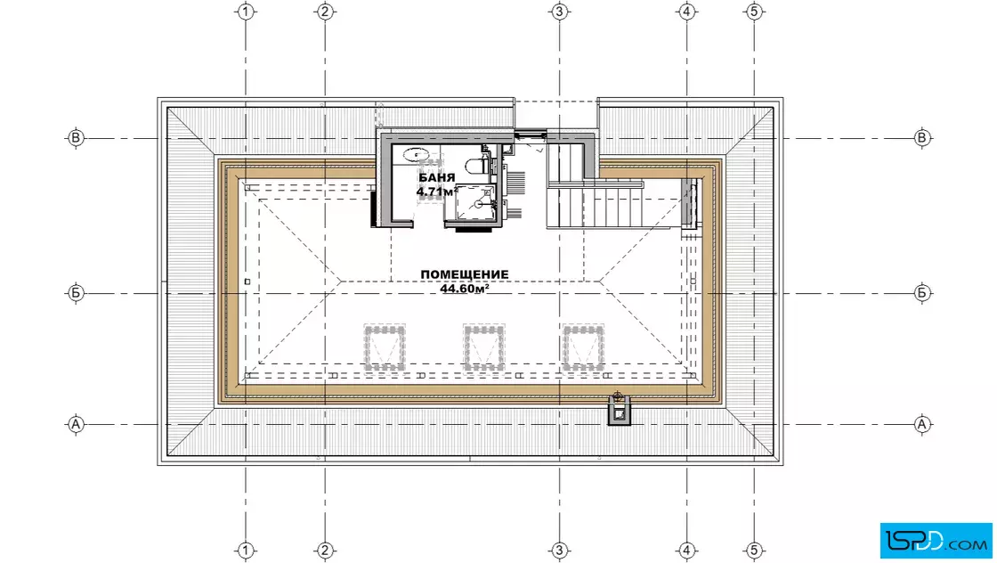
Третият етаж предоставя допълнително ниво за гъвкаво ползване – кабинет, студио или място за хоби, което адаптира дома към нуждите на семейството.
Многоскатният покрив и внимателно подбраните материали придават завършен, представителен облик, а високото качество на изолациите и дограмите гарантира топлина и енергийна ефективност.
Тази къща е пример за съвременен градски дом – балансиран между естетика, функционалност и уют. Дом, който носи спокойствие и свобода в сърцето на града.

























Коментари