Архитектурно студио
Работаем в любом масштабе и
в любой сфере
архитекти София
Создаем пространства в синхроне
с иx
окружением
Архитектурно студио
Мы объединяем естественный рельеф с
человеческой
находчивости
Архитектурно студио
Мы реализуем динамичные, инновационные и
устойчивые
проекты

Проект на къща в гр. София

Информация за проекта:

  • Проект ID: 943
  • Место нахождения: р-н Младост, гр. София
  • Фаза проекта: технический проект
  • Этап строительства: Проект
  • Тип крыши: Двускатный
  • Технически показатели
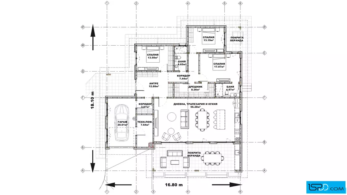
  • Площадь зданий: 195 кв.м.
  • Общая площадь: 195 кв.м.
  • Габарити на сградата
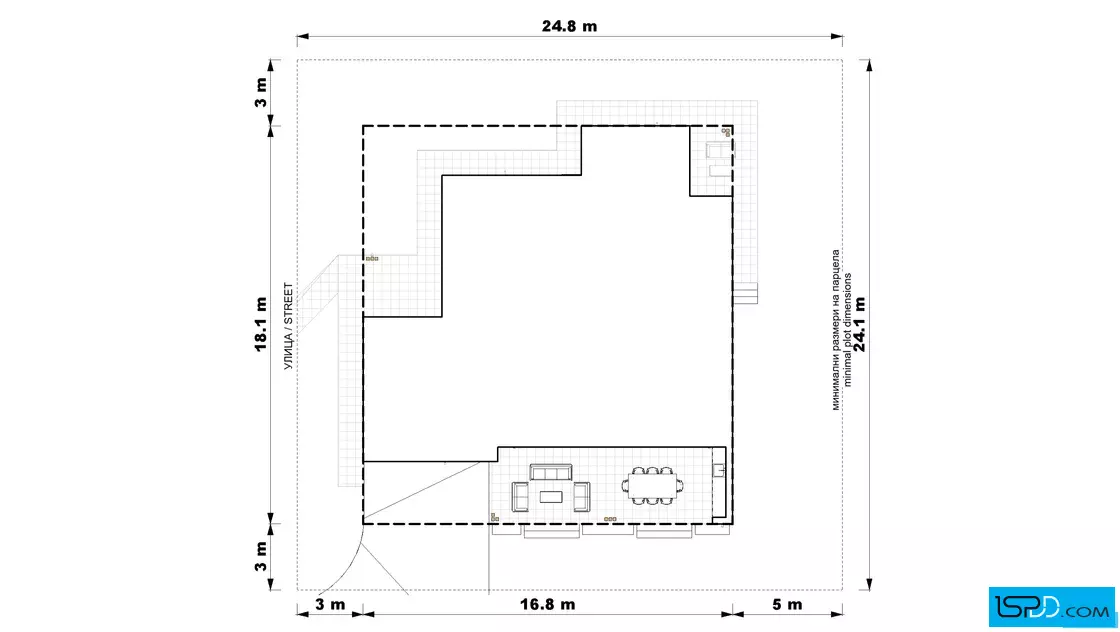
  • Широчина на сградата: 18.10 м.
  • Дължина на сградата: 16.80 м.
  • Функционалност
  • Сутерен: Не
  • Этажи: 1
  • Комнаты: 4
  • Спальни: 3
  • Веранда: 2
  • Гараж: 1
  • Бани/WC: 2

Информация за проекта:

Едноетажна къща с дървена конструкция, проектирана за живот в хармония с природата и светлината. Архитектурната ѝ форма е модерна, компактна и изчистена, подчертаваща топлината на естествените материали и усещането за уют.

Просторната дневна зона е сърцето на дома – обединява кухня, трапезария и кът за почивка в едно общо, светло пространство, което плавно се отваря към покрита веранда. Там се оформя външна лайфстайл зона с мека мебел и място за хранене на открито – продължение на интериора към двора.

Интимната част на къщата е отделена и включва три спални и две бани, осигуряващи уединение и комфорт за всеки член на семейството. Покривът е двускатен с елегантен силует, а фасадата съчетава минерална мазилка, каменна облицовка и декоративни HPL панели, придаващи естествена текстура и модерна визия.

Дървената скелетна конструкция и топлоизолацията от каменна вата гарантират енергийна ефективност и уютен микроклимат през всички сезони. Големите прозорци и отворените гледки към двора внасят усещане за простор и връзка с околната среда.

Това е дом, в който светлината, топлината и природата се срещат в перфектен баланс.

943 N/A

Планове:

План на първи етаж

План на първи етаж

Ситуиране на къщата в парцела:

Жилищно строителство

Жилищно строителство

Вилно строителство

Вилно строителство

Коментари

Няма добавени коментари - пишете ни от формата по-долу