Проект на къща в с. Гуцал
Информация за проекта:
- Проект ID: 947
- Место нахождения: с. Гуцал, общ. Самоков
- Фаза проекта: технический проект
- Этап строительства: строеж
- Тип крыши: Двускатный
- Технически показатели
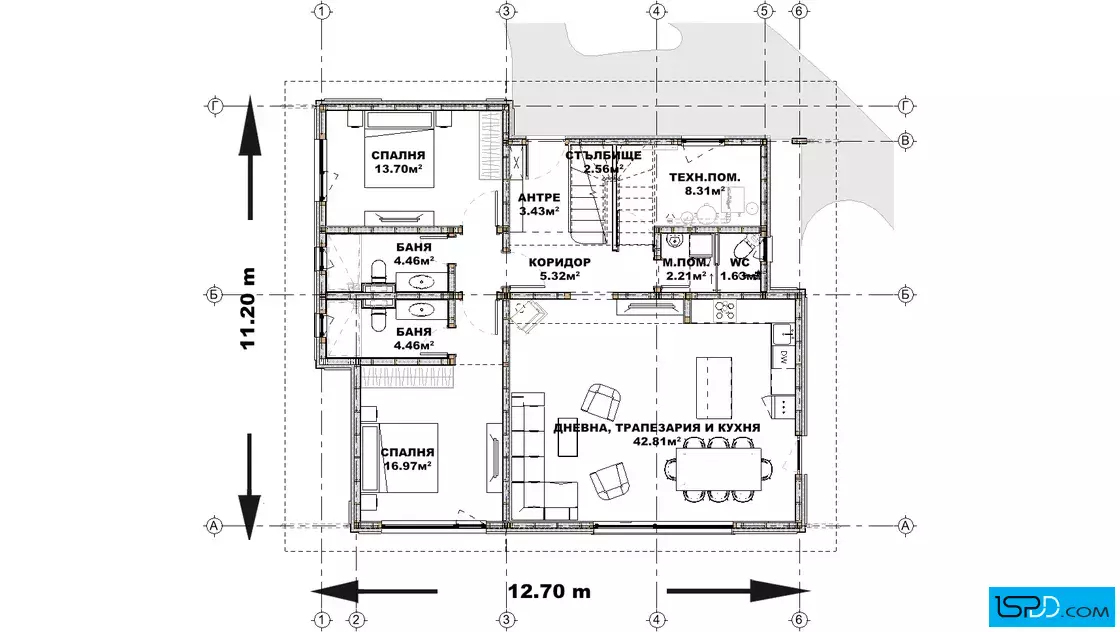
- Площадь зданий: 128 кв.м.
- Общая площадь: 162 кв.м.
- Габарити на сградата
- Широчина на сградата: 12.70 м.
- Дължина на сградата: 11.20 м.
- Функционалност
- Сутерен: Не
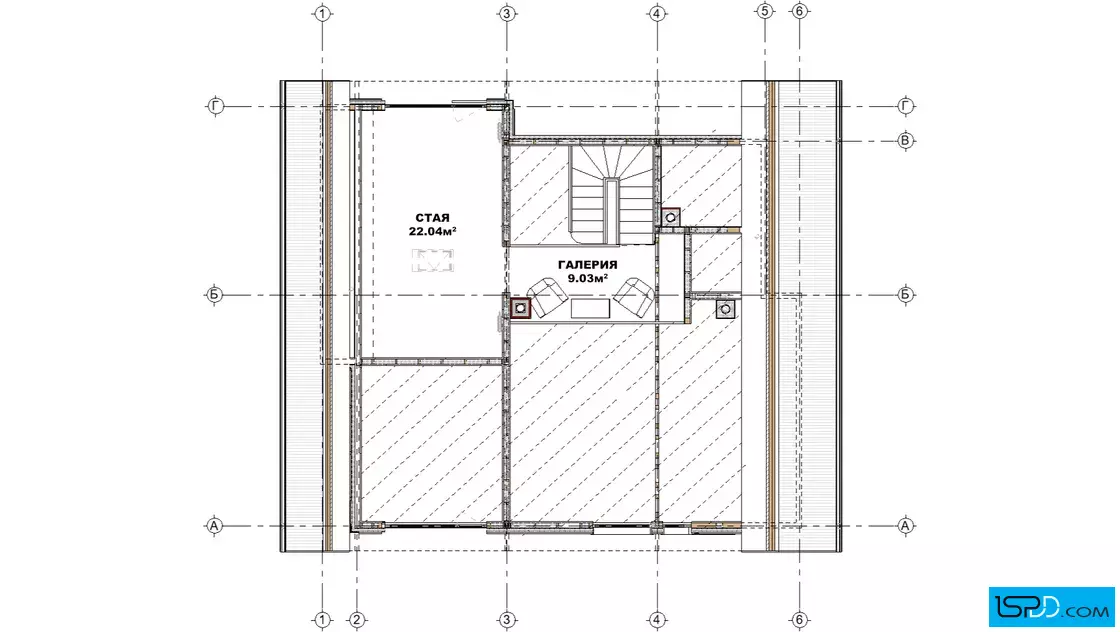
- Этажи: 2
- Комнаты: 4
- Спальни: 2
- Веранда: 1
- Бани/WC: 3
Информация за проекта:
Тази къща в село Гуцал е проектирана с мисъл за живот близо до природата – в подножието на Рила планина. Архитектурната ѝ концепция стъпва върху дървена скелетна конструкция, която осигурява екологичност, топлина и усещане за естествен уют. Фасадата е облечена в дървена облицовка, комбинирана с минерална мазилка, което ѝ придава съвременен, но топъл и хармоничен вид, вписващ се отлично в планинския пейзаж.
Къщата е двуетажна и с компактна форма, създадена за комфорт както през уикенда, така и при целогодишно обитаване. Първият етаж е отворен и просторен – дневната зона е с двойна височина и големи прозорци, през които светлината изпълва целия дом. Тук се намират уютният хол, трапезарията и кухнята, които естествено преливат едни в други. Двете спални са разположени така, че да запазят спокойствието и гледките към околната природа.
Външните материали и пропорции на сградата създават усещане за топлина и стабилност. Керамичният покрив и дървените детайли подчертават връзката с традицията, а модерните елементи на фасадата я правят актуална и стилна. Макар и замислена като ваканционна, къщата предлага всички удобства за целогодишен живот – добра изолация, ефективни материали и практично вътрешно разпределение.
Дом, който съчетава уюта на планинското убежище с удобствата на съвременния живот – място, където природата и архитектурата дишат в един ритъм.
























Коментари