Проект на къща в гр. Перник
Информация за проекта:
- Проект ID: 948
- Место нахождения: гр. Перник
- Фаза проекта: технический проект
- Этап строительства: Проект
- Тип крыши: Плоской
- Технически показатели
- Площадь зданий: 100 кв.м.
- Общая площадь: 321 кв.м.
- Габарити на сградата
- Широчина на сградата: 10.90 м.
- Дължина на сградата: 9.50 м.
- Функционалност
- Сутерен: Да
- Этажи: 2
- Комнаты: 4
- Спальни: 3
- Балконы: 1
- Гараж: 2
- Бани/WC: 3
Информация за проекта:
Тази модерна къща в гр. Перник впечатлява с кубични обеми и динамична композиция, която естествено следва стръмния терен. От страната на улицата сградата се разкрива като триетажна, докато към двора плавно преминава в двуетажен обем, което подчертава хармонията между архитектура и терен.
Основният акцент е върху просторното остъкляване към двора – големи витрини, които свързват дневната зона с външното пространство и пропускат обилна естествена светлина. Тук се оформя истинската лайфстайл зона – отворена, светла и свободна, създадена за съвременен начин на живот.
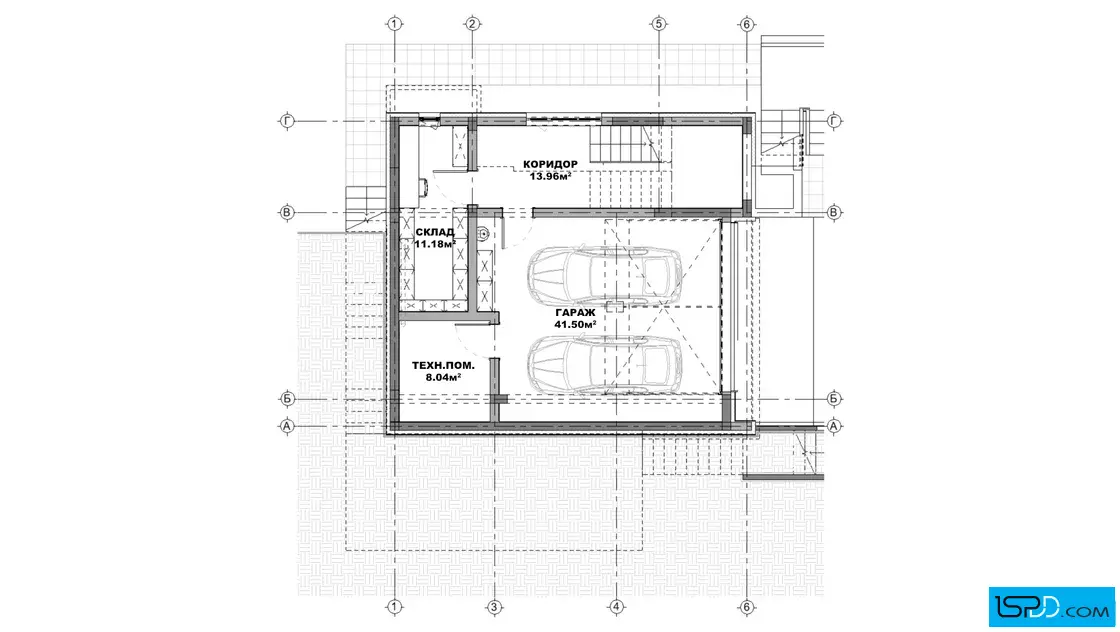
Във функционално отношение домът включва дневен етаж с обединени кухня, трапезария и хол, които плавно преминават към верандата и градината. Втория етаж е отделен за три спални и комфортни санитарни помещения, осигуряващи уединение и спокойствие. Подземният етаж позволява удобно паркиране за две коли и допълнителни помощни помещения.
Фасадата е завършена с комбинация от минерална мазилка, HPL панели и широкоформатен гранитогрес, които подчертават модерната линия на къщата и придават усещане за изисканост. Плоският покрив и чистите геометрични линии допълват съвременната визия.
Това е дом, в който светлината, пространството и природата се срещат в перфектен баланс – място, което вдъхновява усещане за свобода и модерен уют.

























Коментари