Архитектурно студио
Работаем в любом масштабе и
в любой сфере
архитекти София
Создаем пространства в синхроне
с иx
окружением
Архитектурно студио
Мы объединяем естественный рельеф с
человеческой
находчивости
Архитектурно студио
Мы реализуем динамичные, инновационные и
устойчивые
проекты

Проект на къща в с. Лозен

Информация за проекта:

  • Проект ID: 949
  • Место нахождения: с. Лозен, р-н Панчарево, гр. София
  • Фаза проекта: технический проект
  • Этап строительства: строеж
  • Тип крыши: Многоскатен
  • Технически показатели
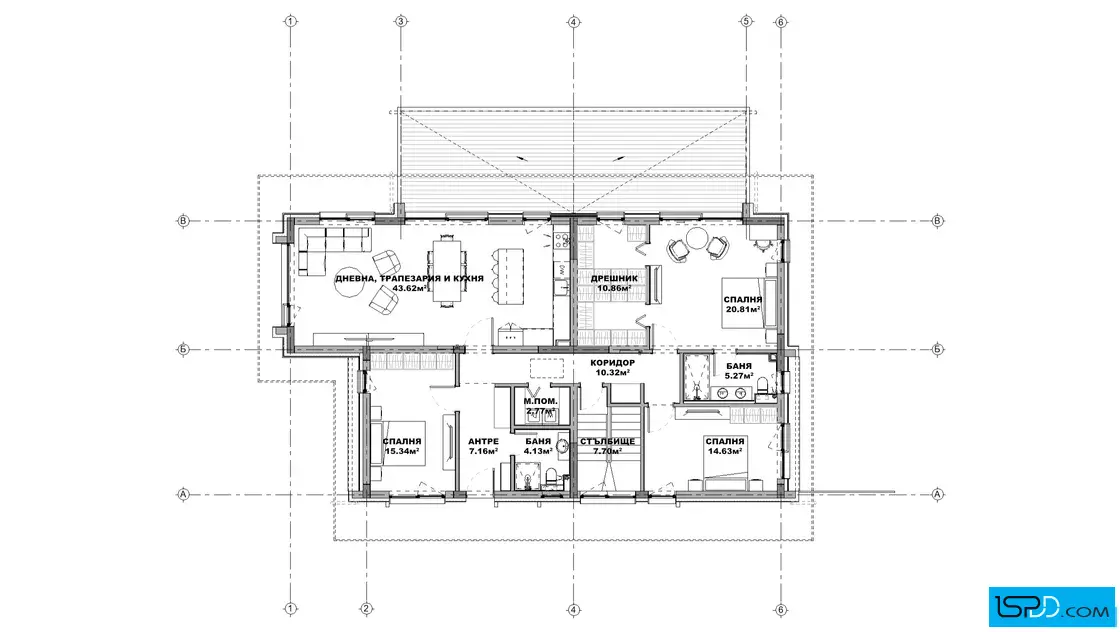
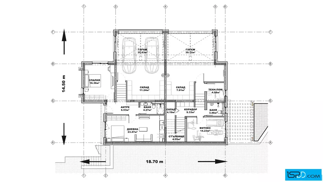
  • Площадь зданий: 227 кв.м.
  • Общая площадь: 402 кв.м.
  • Габарити на сградата
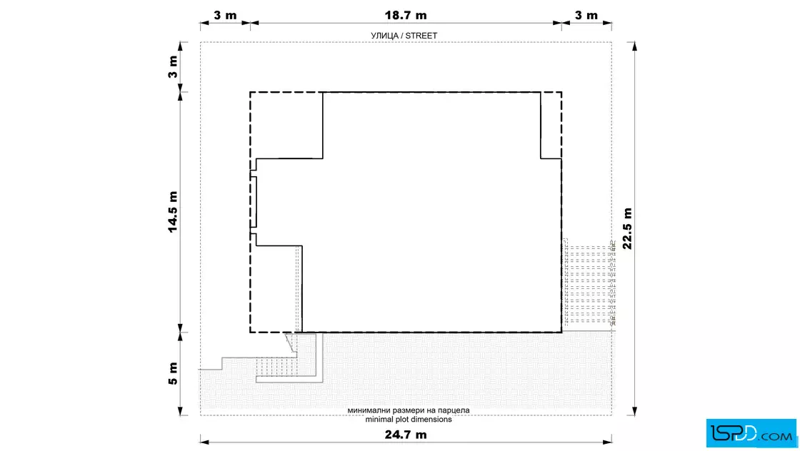
  • Широчина на сградата: 18.70 м.
  • Дължина на сградата: 14.50 м.
  • Функционалност
  • Сутерен: Не
  • Этажи: 2
  • Комнаты: 7
  • Спальни: 4
  • Гараж: 4
  • Бани/WC: 4

Информация за проекта:

Тази къща в с. Лозен е разположена на стръмен терен, където улицата е в ниската част, а дворът – в горната. Денивелацията естествено оформя едноетажна фасада към двора и двуетажна към улицата, придавайки на дома интересна пространствена динамика. Основните жилищни помещения са развити на второто ниво, откъдето се разкрива красива панорама към север и околните хълмове. Архитектурната форма е балансирана – съчетава модерна линия с топло и уютно излъчване.

Фасадата е решена в естествени материали – травертин, дървена облицовка и бяла мазилка, които придават на къщата светъл и земен характер. Многоскатният покрив с керамични керемиди допълва усещането за традиционен, но съвременен дом. Просторната дневна зона и големите прозорци осигуряват плавна връзка между вътрешното пространство и природата отвън.

Със своите четири спални и функционално разпределение на два етажа, домът предлага удобство за семейство, което търси спокойствие и уединение, без да се отказва от гледките и светлината. Гаражът за четири коли и подредените външни зони допълват усещането за завършеност и комфорт.

Това е дом, който се вписва хармонично в терена и природата, съчетавайки традиция, уют и модерна естетика.

949 N/A

Планове:

План на първи етаж

План на първи етаж

План на втори етаж

План на втори етаж

Ситуиране на къщата в парцела:

Жилищно строителство

Жилищно строителство

Вилно строителство

Вилно строителство

Коментари

Няма добавени коментари - пишете ни от формата по-долу