Проект на къща в гр. Бургас
Информация за проекта:
- Проект ID: 955
- Место нахождения: гр. Бургас
- Фаза проекта: технический проект
- Этап строительства: Проект
- Тип крыши: Многоскатен
- Технически показатели
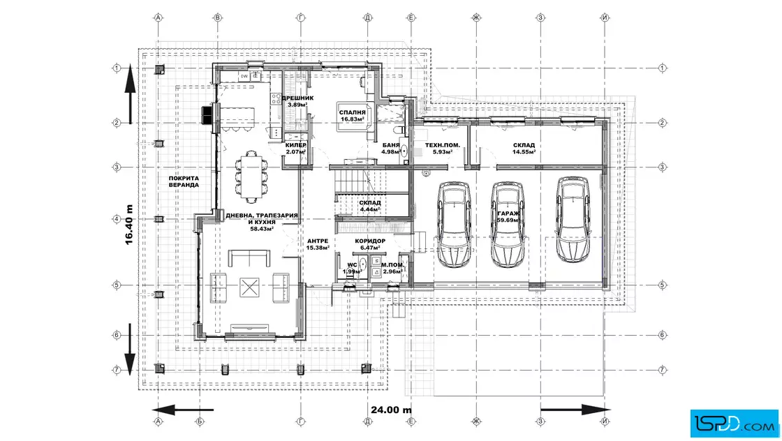
- Площадь зданий: 238 кв.м.
- Общая площадь: 425 кв.м.
- Габарити на сградата
- Широчина на сградата: 24.00 м.
- Дължина на сградата: 16.40 м.
- Функционалност
- Сутерен: Не
- Этажи: 2
- Комнаты: 6
- Спальни: 5
- Балконы: 2
- Веранда: 1
- Гараж: 3
- Бани/WC: 6
Информация за проекта:
Проектът на къща в гр. Бургас представя елегантен двуетажен дом, вдъхновен от класическата и средиземноморската архитектура. Формата е изчистена и хармонична, с топли тонове, декоративни каменни акценти и многоскатен покрив, който придава завършен и уютен силует.
Просторната дневна зона на първия етаж обединява хол, кухня и трапезария в светло и отворено пространство, което плавно преминава към покритата веранда. Там елегантните арки създават усещане за лекота и връзка с природата – място за следобедно кафе или дълги вечери под открито небе. На същото ниво се намира и една комфортна спалня, подходяща за гости или за родители, които предпочитат близост до дневните функции.
Вторият етаж е изцяло посветен на уединението – четири спални и няколко бани оформят лична зона за всеки член на семейството. Тук се открива и просторна тераса, която разширява дома навън и предлага гледка към двора и хоризонта.
Външната визия впечатлява с комбинация от минерална мазилка, каменна облицовка и фини декоративни елементи, а арките по фасадата придават благороден и романтичен характер. Връзката между вътрешното и външното пространство е плавна и естествена – къща, която съчетава традиция, комфорт и светлина. Дом, който носи усещане за вечна хармония и средиземноморско спокойствие.
























Коментари