Проект на къща в гр. Костинброд
Информация за проекта:
- Проект ID: 956
- Место нахождения: гр. Костинброд
- Фаза проекта: технический проект
- Этап строительства: Проект
- Тип крыши: Плоской
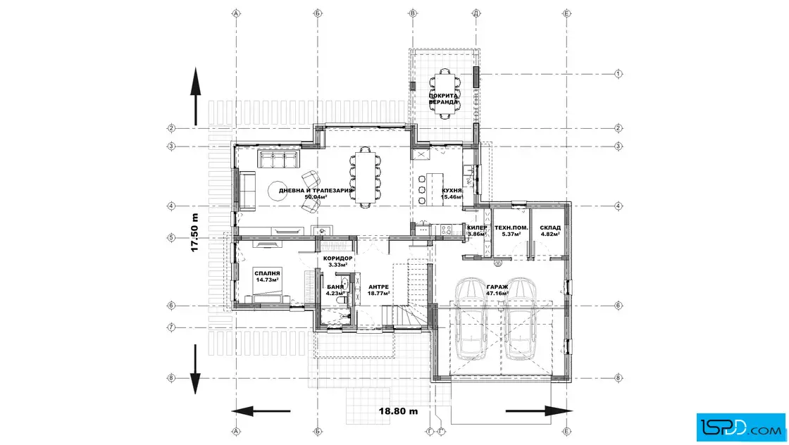
- Технически показатели
- Площадь зданий: 202 кв.м.
- Общая площадь: 365 кв.м.
- Габарити на сградата
- Широчина на сградата: 18.80 м.
- Дължина на сградата: 17.50 м.
- Функционалност
- Сутерен: Не
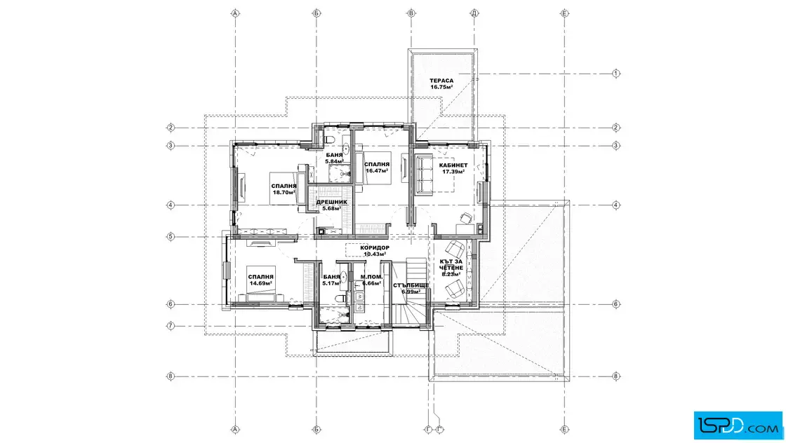
- Этажи: 2
- Комнаты: 7
- Спальни: 4
- Балконы: 1
- Веранда: 1
- Гараж: 2
- Бани/WC: 3
Информация за проекта:
Този проект представя съвременна двуетажна къща в гр. Костинброд, отличаваща се с елегантна геометрия и модерна визия. Компактната, но функционална форма съчетава монолитна стоманобетонна конструкция с фасадни материали като HPL панели, гранитогрес и метални елементи – комбинация, която придава на сградата изискан и устойчив характер. Плоският покрив допълва минималистичния архитектурен език и създава усещане за лекота.
Първият етаж е проектиран с просторна дневна зона, където кухнята, трапезарията и холът се обединяват в едно хармонично пространство с директен излаз към верандата и двора. Тази връзка между интериора и екстериора осигурява естествена светлина и визуална връзка с природата. На втория етаж са разположени четири уютни спални и тераса, осигуряваща лично пространство и гледка към околността.
Къщата разполага с три бани и двоен гараж, което я прави удобна за съвременно семейство. Външната топлоизолация от каменна вата и висококачествената дограма с троен стъклопакет гарантират енергийна ефективност и комфорт през всички сезони.
Този проект е пример за съчетание на естетика, функционалност и модерно мислене – дом, в който всеки ден започва с усещане за простор, светлина и хармония.
























Коментари