Проект на къща в гр. София
Информация за проекта:
- Проект ID: 958
- Место нахождения: гр. София
- Фаза проекта: технический проект
- Этап строительства: Проект
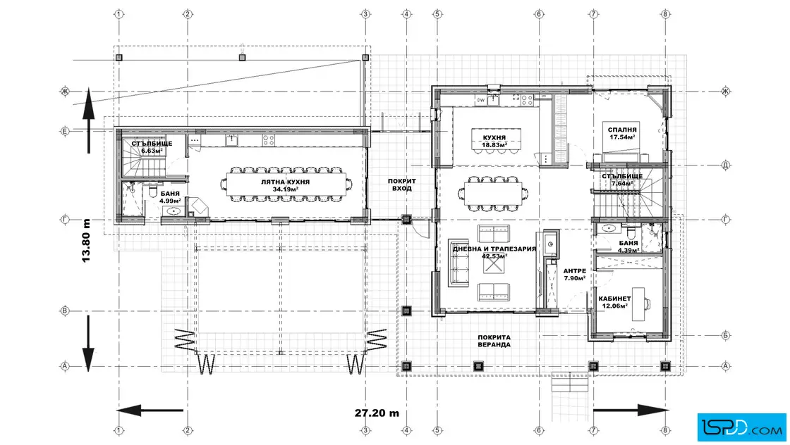
- Тип крыши: Многоскатен
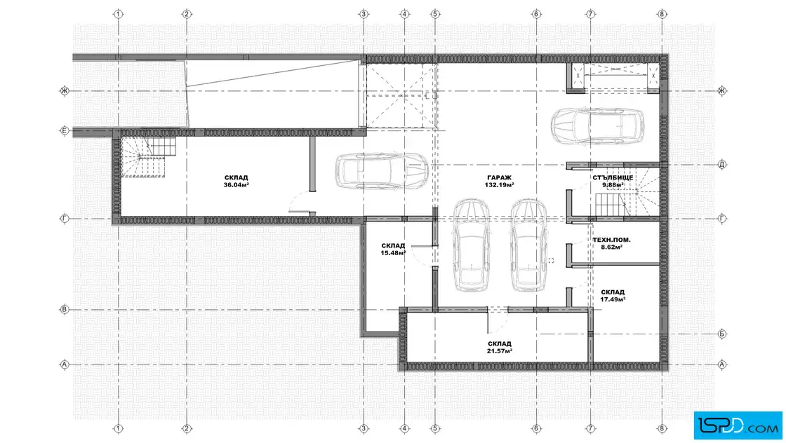
- Технически показатели
- Площадь зданий: 194 кв.м.
- Общая площадь: 637 кв.м.
- Габарити на сградата
- Широчина на сградата: 27.20 м.
- Дължина на сградата: 13.80 м.
- Функционалност
- Сутерен: Да
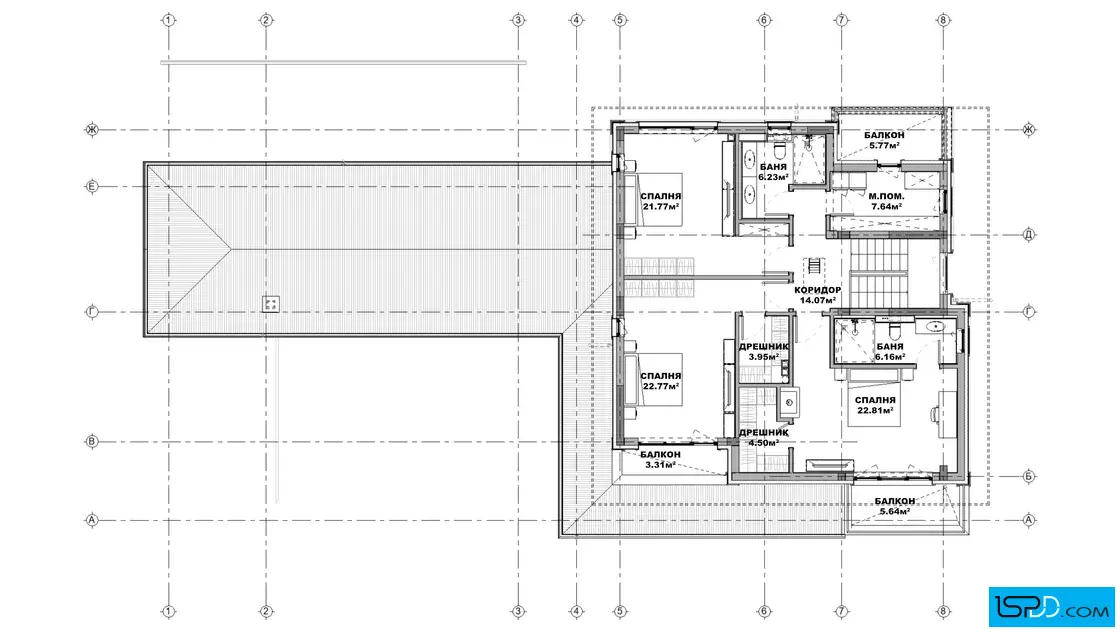
- Этажи: 2
- Комнаты: 7
- Спальни: 4
- Балконы: 3
- Веранда: 1
- Гараж: 4
- Бани/WC: 4
Информация за проекта:
Проект на къща в гр. София проектирана от архитектурно студио Ай Ес Пи Дигитален Дизайн

























Коментари