Проект на къща в гр. София
Информация за проекта:
- Проект ID: 959
- Место нахождения: гр. София
- Фаза проекта: технический проект
- Этап строительства: строеж
- Тип крыши: Двускатный
- Технически показатели
- Площадь зданий: 128 кв.м.
- Общая площадь: 383 кв.м.
- Габарити на сградата
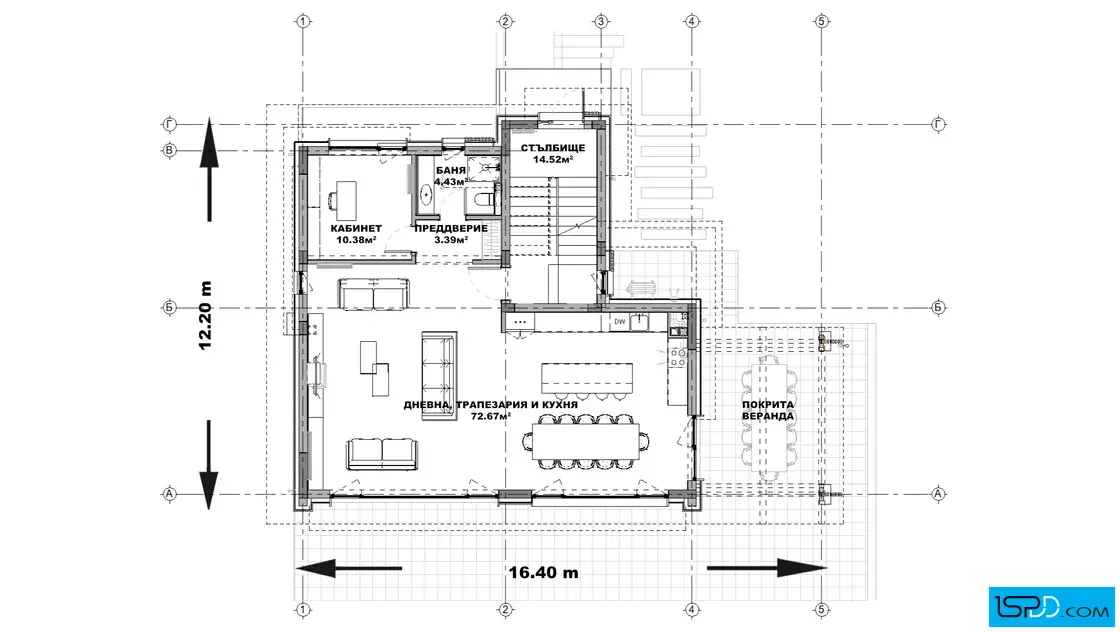
- Широчина на сградата: 16.40 м.
- Дължина на сградата: 12.20 м.
- Функционалност
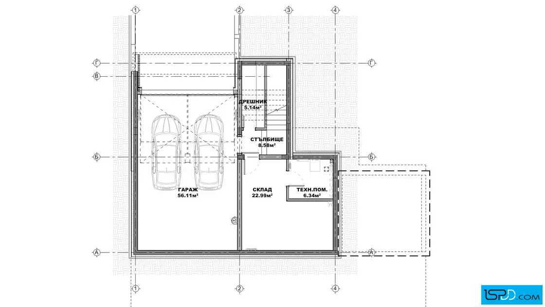
- Сутерен: Да
- Этажи: 2
- Комнаты: 5
- Спальни: 3
- Веранда: 1
- Гараж: 2
- Бани/WC: 3
Информация за проекта:
Проект на къща в гр. София проектирана от архитектурно студио Ай Ес Пи Дигитален Дизайн

























Коментари