Проект на къща в с. Желява
Информация за проекта:
- Проект ID: 961
- Место нахождения: с. Желява, р-н Кремиковци, гр. София
- Фаза проекта: технический проект
- Этап строительства: Проект
- Тип крыши: Плоской
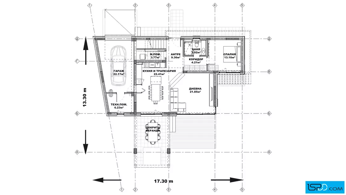
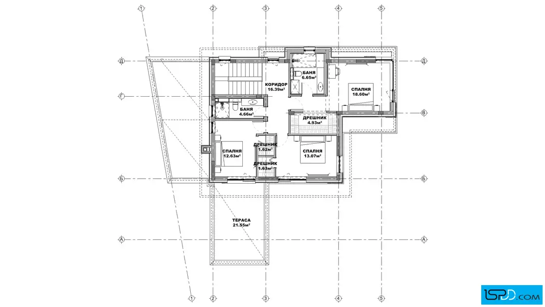
- Технически показатели
- Площадь зданий: 133 кв.м.
- Общая площадь: 259 кв.м.
- Габарити на сградата
- Широчина на сградата: 17.30 м.
- Дължина на сградата: 13.30 м.
- Функционалност
- Сутерен: Не
- Этажи: 2
- Комнаты: 5
- Спальни: 4
- Балконы: 1
- Веранда: 1
- Гараж: 1
- Бани/WC: 3
Информация за проекта:
Проект на къща в с. Желява проектирана от архитектурно студио Ай Ес Пи Дигитален Дизайн
























Коментари