Проект на къща в с. Балабанско
Информация за проекта:
- Проект ID: 972
- Место нахождения: с. Балабанско, общ. Троян
- Фаза проекта: технический проект
- Этап строительства: строеж
- Тип крыши: Многоскатен
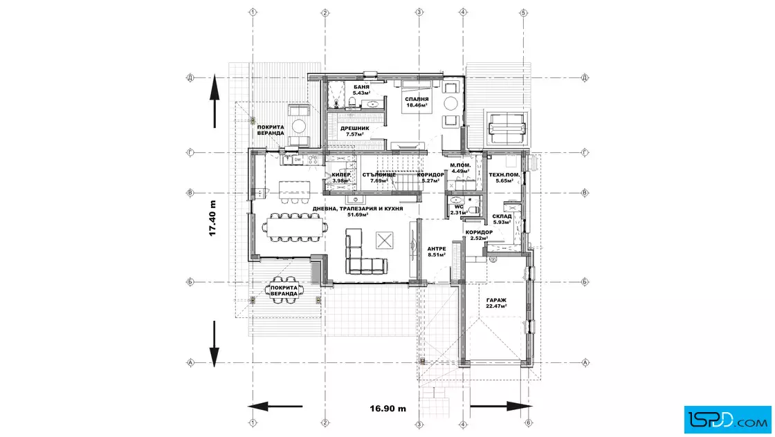
- Технически показатели
- Площадь зданий: 190 кв.м.
- Общая площадь: 301 кв.м.
- Габарити на сградата
- Широчина на сградата: 17.40 м.
- Дължина на сградата: 16.90 м.
- Функционалност
- Сутерен: Не
- Этажи: 2
- Комнаты: 5
- Спальни: 3
- Веранда: 2
- Гараж: 1
- Бани/WC: 3
Информация за проекта:
Проект на къща в с. Балабанско проектирана от архитектурно студио Ай Ес Пи Дигитален Дизайн
























Коментари